IP30 0HJ - 4 bedroom detached house for sale in Willow Mews, Cockfield…

View on Property Piper

4 bedroom detached house for sale in Willow Mews, Cockfield, IP30

Summary - COCKFIELD HOUSE GREAT GREEN COCKFIELD BURY ST EDMUNDS IP30 0HJ

4 bed 3 bath Detached

New four-bedroom detached home with garage, large garden and modern low-carbon heating in tranquil village setting..
Last available new-build plot with Premier Warranty
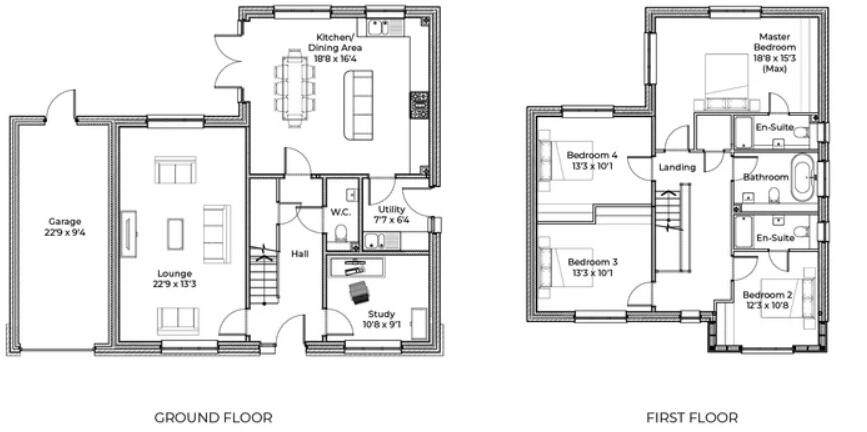
This new four-bedroom detached home in Cockfield offers roomy, practical living across a generous 2,161 sq ft layout, designed for family life. The large open-plan kitchen/diner with central island and French doors opens to a substantial turfed garden, while a separate lounge and ground-floor study/play room provide flexible space for work and relaxation.

Built to modern standards, the house includes an air source heat pump and comes with a Premier Warranty, promising lower running emissions and recent-build protections. Integrated kitchen appliances, quartz worktops and contemporary bathrooms deliver a high-quality finish throughout. The attached garage, driveway parking for two vehicles and fast broadband make the property convenient for daily needs.

Set in a quiet village within established farming communities, this is a good choice for families seeking countryside life close to well-regarded primary schools. Note that the village setting may mean limited local amenities and public transport options; mobile phone signal is average. Buyers should also be aware this is a new-build ‘last plot’ sale — some landscaping remains recent and further settling or minor snagging may be needed.

Property Details

Image Descriptions

Floorplan Description

Rooms

Textual Property Features

Target Audience

AI Tags

Detected Visual Features

Nearby Schools

Nearest Bars And Restaurants

,,,,}

Nearest General Shops

,,}

Nearest Grocery shops

,,}

Nearest Supermarkets

,,}

Nearest Religious buildings

,,}

Nearest Medical buildings

,,,}

Nearest Leisure Facilities

,,,,}

Nearest Tourist attractions

,,}

Nearest Train stations

,,,,}

Nearest Bus stations and stops

,,,,}

Nearest Hotels

,,}

Tags

Local Market Stats

Similar Properties

Meta

High Res Images

Compatible Images

Low res Images

Thumbnails

Raw Images

High Res Floorplan Images

Compatible Floorplan Images

Low res Floorplan Images

FloorplanImages Thumbnail

Raw Floorplan Images