Large new-build home steps from Kelvedon station with modern efficiency features.
Five bedrooms across two storeys, 2,397 sq ft of living space
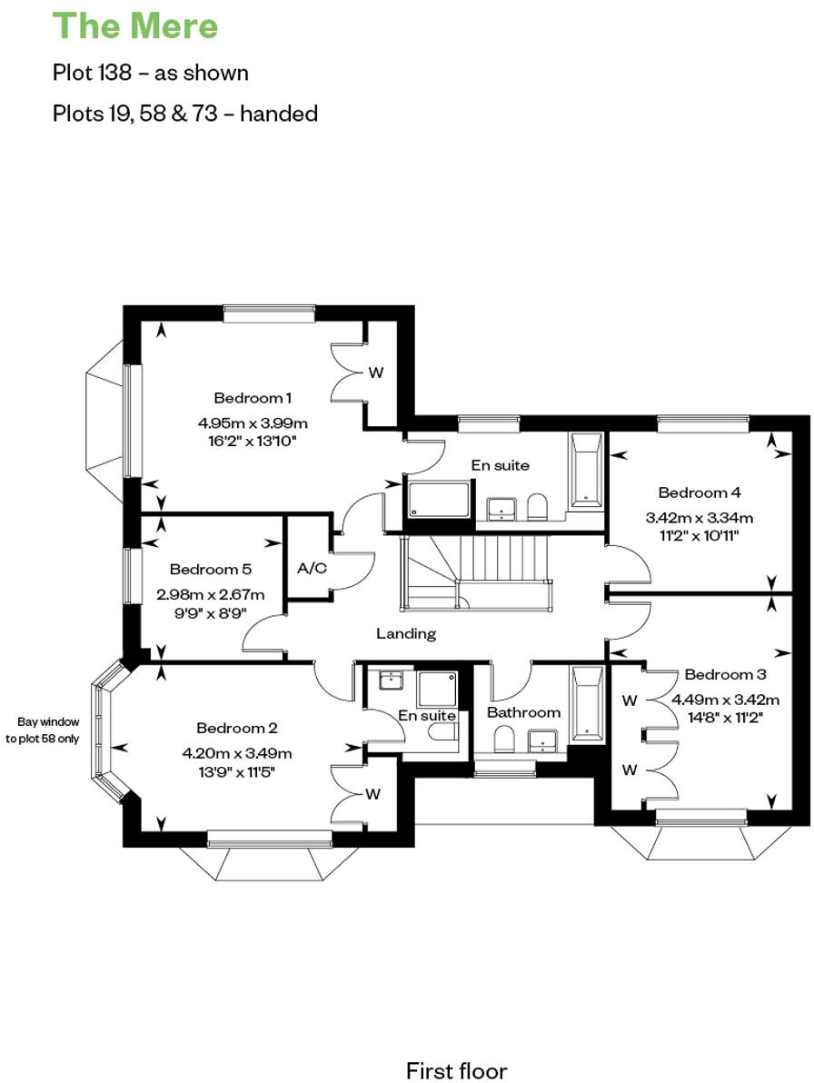
A spacious five-bedroom detached new build offering 2,397 sq ft of flexible family living close to Kelvedon station. The ground floor is designed for everyday life and entertaining, with a generous hallway, formal dining room with twin bay windows and a sitting room that opens onto the landscaped garden via patio doors. The open-plan kitchen/family room and separate utility keep daily routines organised, while a private study provides a quiet workspace.
Energy-efficient features include an air source heat pump, ground-floor underfloor heating and an electric vehicle charger, reducing running costs and future-proofing the home. The property includes a garage, driveway parking and a large private plot. Excellent local amenities are within walking distance and Kelvedon station is around 500m away, with regular trains to London and Colchester.
Practical points to note: this home has only one bathroom for five bedrooms, which may require adaptation for larger families. Council tax is predicted in band G and described as quite expensive. Service charge is low (approx. £184.19 pa). Only one of this house type remains available.
4 bedroom detached house for sale in Doughton Road (off, Coggeshall Road), Kelvedon
CO5 9NX, CO5 — £700,000 • 4 bed • 1 bath • 1701 ft²
4 bedroom detached house for sale in Doughton Road (off, Coggeshall Road), Kelvedon
CO5 9NX, CO5 — £800,000 • 4 bed • 1 bath • 1978 ft²
4 bedroom end of terrace house for sale in Doughton Road (off, Coggeshall Road), Kelvedon
CO5 9NX, CO5 — £600,000 • 4 bed • 1 bath • 1555 ft²
4 bedroom detached house for sale in The Embleton at Ayletts Green, Seabrook Road, Kelvedon, Colchester, Essex, CO5 — £700,000 • 4 bed • 3 bath • 1074 ft²
5 bedroom detached house for sale in Doughton Road (off, Coggeshall Road), Kelvedon
CO5 9NX, CO5 — £815,000 • 5 bed • 1 bath • 2030 ft²
4 bedroom detached house for sale in Doughton Road (off, Coggeshall Road), Kelvedon
CO5 9NX, CO5 — £779,950 • 4 bed • 1 bath • 1849 ft²














































































































































































