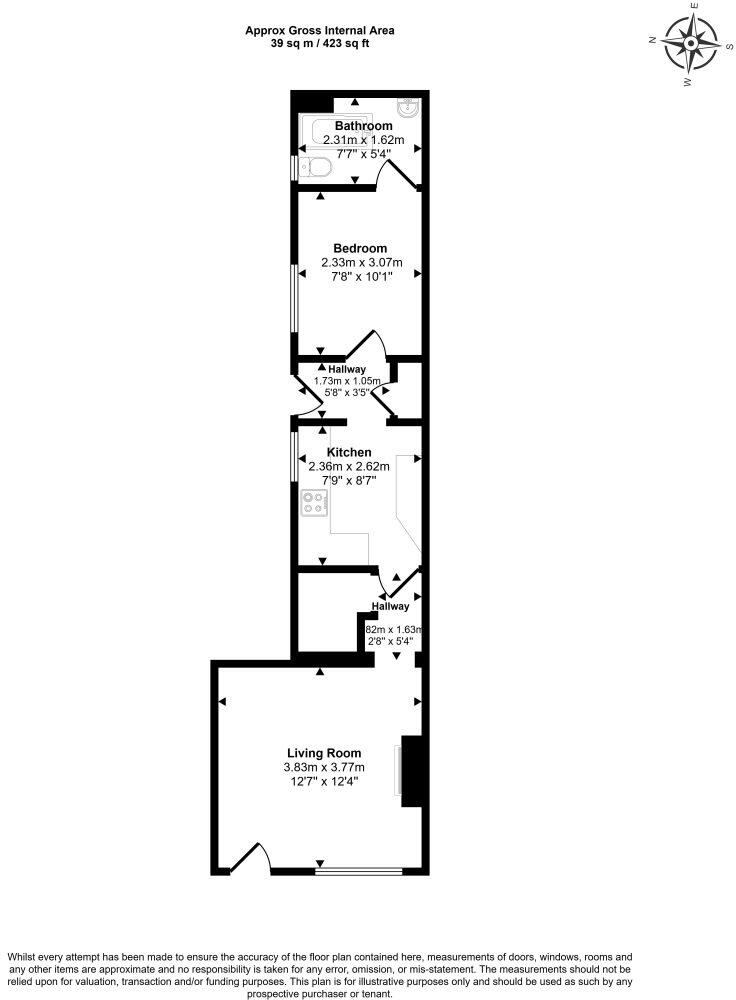
**Standout Features:**
- Spacious double bedroom with tall ceilings
- Bright living room ripe for upgrades
- Kitchen and bathroom in need of refurbishment
- Secure leasehold property with a low ground rent of £80
- Prime location near shops and transport, within walking distance to the seafront
- Excellent mobile signal
**Summary:**
This one-bedroom flat in the heart of Bognor Regis offers a unique opportunity for those looking to invest or embark on a renovation project. Highlighted by a spacious double bedroom and a bright living area, the property presents ample potential for modern upgrades. Both the kitchen and bathroom require refurbishment, allowing you to tailor the space to your personal taste.
Perfectly positioned close to vibrant local amenities, compassionate schools, and just a short stroll from the picturesque seafront, this apartment could serve as a comfortable home or a lucrative rental. Located in a cosmopolitan district, it attracts a blend of migrant families and students, setting the stage for a lively community atmosphere.
Although there are concerns about high crime rates in the area, the property remains an appealing prospect given its location and potential. The relatively low service charge and affordable council tax make it a financially sensible choice for first-time buyers or investors eager to make their mark. With an optional reservation deposit of £2,500, you can secure this gem and take your time to explore renovation options, ensuring you don't miss out on a unique property with significant future potential.
1 bedroom flat for sale in The Steyne, Bognor Regis, West Sussex, PO21 — £110,000 • 1 bed • 1 bath • 306 ft²
1 bedroom flat for sale in West Street, Bognor Regis, West Sussex, PO21 — £125,000 • 1 bed • 1 bath • 458 ft²
1 bedroom apartment for sale in West Street, Bognor Regis, PO21 — £70,000 • 1 bed • 1 bath • 571 ft²
1 bedroom apartment for sale in Lennox Street, Bognor Regis, PO21 — £115,000 • 1 bed • 1 bath • 524 ft²
2 bedroom apartment for sale in High Street, Bognor Regis, West Sussex, PO21 — £130,000 • 2 bed • 1 bath • 865 ft²
1 bedroom apartment for sale in Lennox Street, Bognor Regis, PO21 — £85,000 • 1 bed • 1 bath • 528 ft²






















































































