Bright open-plan living moments from the Thames and local amenities.
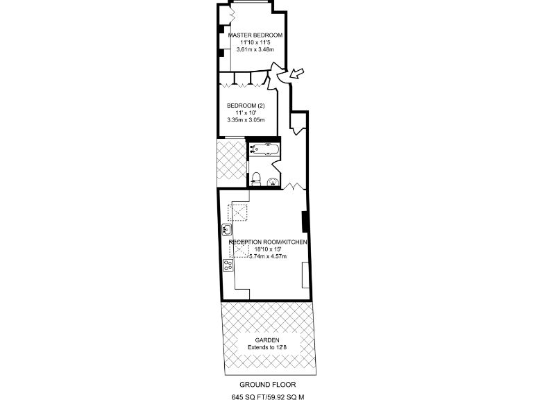
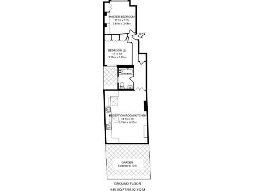
Ground-floor two-bedroom flat with private rear patio garden
A bright two-bedroom ground-floor flat in Sands End, arranged around an open-plan reception and kitchen that opens onto a private patio garden. The property sits within a period mid-terrace, retains character proportions and benefits from double glazing, mains gas central heating and a very long lease with share of freehold.
The layout suits first-time buyers or couples seeking a low-maintenance city base close to the Thames, local shops, bars and convenient transport. Bedrooms are well proportioned and include built-in storage; the bathroom is modern and the reception space is naturally bright through the French doors to the courtyard.
Practical points to note: the courtyard garden is small, largely paved and needs basic maintenance or landscaping to make it more usable. The building’s solid brick construction suggests limited wall insulation unless upgraded and there is a single bathroom for two bedrooms. Service charge is reported at £500 per year (below average) and the lease term is exceptionally long at 971 years.
Overall this is a straightforward, well-located flat that offers immediate move-in potential and scope to personalise the garden and internal finishes over time. Fast broadband, excellent mobile signal and nearby outstanding primary and secondary schools add to the practical appeal.
2 bedroom flat for sale in Stephendale Road, Fulham, London, SW6 — £825,000 • 2 bed • 2 bath • 759 ft²
2 bedroom flat for sale in Byam Street, Fulham, SW6 — £700,000 • 2 bed • 2 bath • 844 ft²
2 bedroom flat for sale in Broughton Road, Fulham, SW6 — £700,000 • 2 bed • 2 bath • 444 ft²
2 bedroom flat for sale in Edenvale Street, Fulham, London, SW6 — £650,000 • 2 bed • 1 bath • 545 ft²
2 bedroom flat for sale in Querrin Street, London, SW6 — £700,000 • 2 bed • 1 bath • 834 ft²
2 bedroom flat for sale in Stephendale Road, London, SW6 — £675,000 • 2 bed • 1 bath • 689 ft²


















































































































































