Low-maintenance living near Weybridge station and Queens Road.
Two double bedrooms with en suite bathrooms
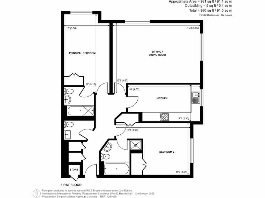
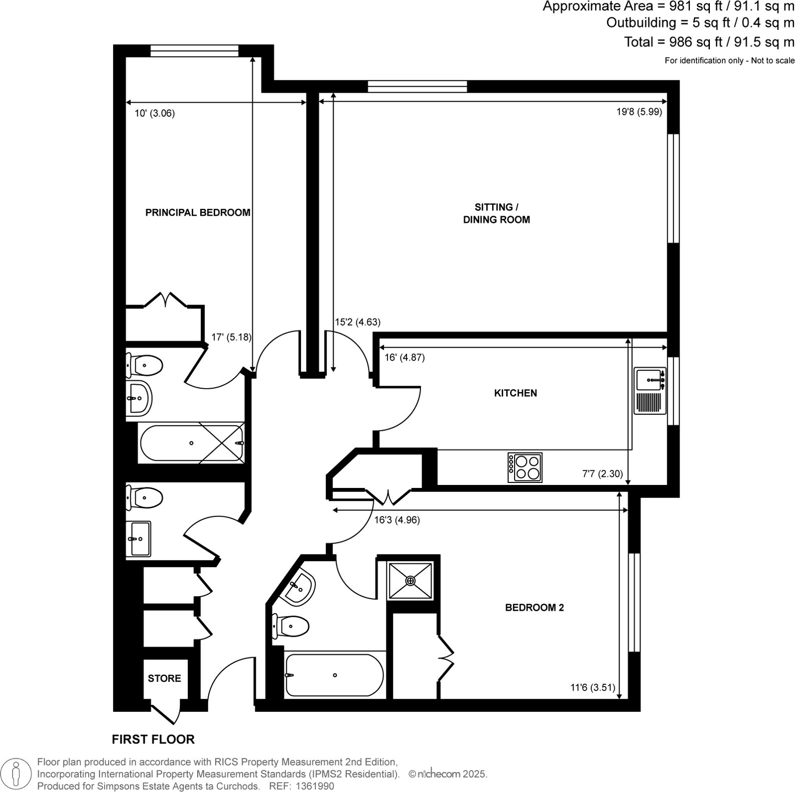
A spacious two-bedroom first/upper-floor apartment in a well-kept, mock‑Tudor gated development close to Weybridge town centre. At around 981 sq ft, the layout delivers two generous double bedrooms (both with en suite facilities), a bright sitting/dining room and a separate kitchen — a practical, low‑maintenance home for downsizers or professionals.
The development offers secure underground parking with two allocated bays, lift access and mature communal gardens set well back from the road. The property benefits from a very long lease (c. 972 years) and a peaceful, affluent neighbourhood a short walk from Queens Road shops, cafés and Weybridge mainline station.
Buyers should note this is a leasehold property with an annual service charge (c. £2,014) and a ground rent of £1,024. Council tax is described as expensive and broadband speeds are reported slow. The interior appears well proportioned but would benefit from cosmetic modernisation to reflect contemporary tastes.
Overall this apartment suits someone seeking comfortable, low‑maintenance living with strong local amenities and transport links, while accepting ongoing leasehold costs and potential upgrades internally.
2 bedroom apartment for sale in Bridgewater Road, Weybridge, KT13 — £495,000 • 2 bed • 2 bath • 1150 ft²
2 bedroom apartment for sale in Queens Road, Weybridge, KT13 — £500,000 • 2 bed • 2 bath • 976 ft²
2 bedroom flat for sale in Ridgewood, Brooklands Road, Weybridge, Surrey, KT13 — £1,150,000 • 2 bed • 2 bath • 1256 ft²
2 bedroom apartment for sale in Newholme Court, 89A Oatlands Drive, Weybridge, KT13 — £575,000 • 2 bed • 2 bath • 854 ft²
2 bedroom flat for sale in Egerton Road, Weybridge, Surrey, KT13 — £412,000 • 2 bed • 1 bath • 960 ft²
2 bedroom apartment for sale in Warbeck House, 46 Queens Road, Weybridge, KT13 — £499,999 • 2 bed • 2 bath • 950 ft²


























































