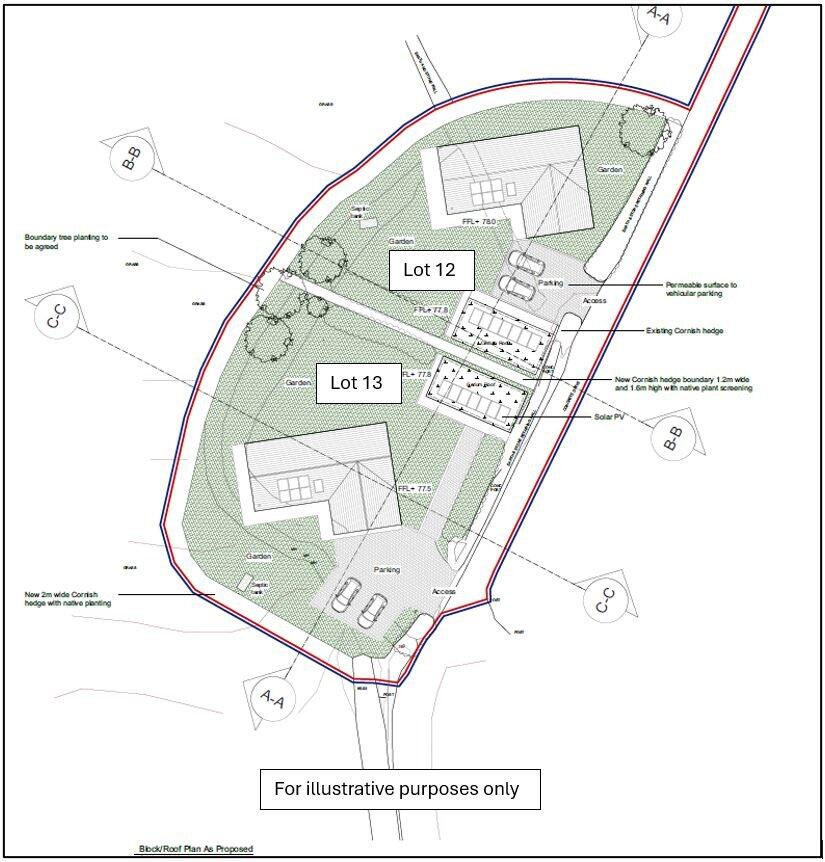
1. 1.06-acre plot with adjoining paddock and extensive outdoor space
2. Appeal lodged after 2024 refusal for a 3/4-bedroom dwelling
3. Mains water and electricity connected; shared private septic tank
4. Located in Cornwall AONB; scenic coastal and countryside access
5. Slow broadband, average mobile signal; remote hamlet location
6. Shared access, wayleaves, and potential maintenance obligations
7. CIL charge may apply; purchasers should confirm planning costs
8. Part of site with existing caravans; CLEUD applies to that area
An expansive 1.06-acre building plot on the Lizard Peninsula offering a rare opportunity to create a detached 3/4-bedroom home in a quiet, scenic rural setting. Mains water and electricity are connected; the plot includes an adjoining paddock and generous outdoor space ideal for grazing, gardens or amenity woodland. The site sits within the Cornwall Area of Outstanding Natural Beauty and benefits from wide-ranging coastal leisure opportunities nearby, including walks, beaches and sailing.
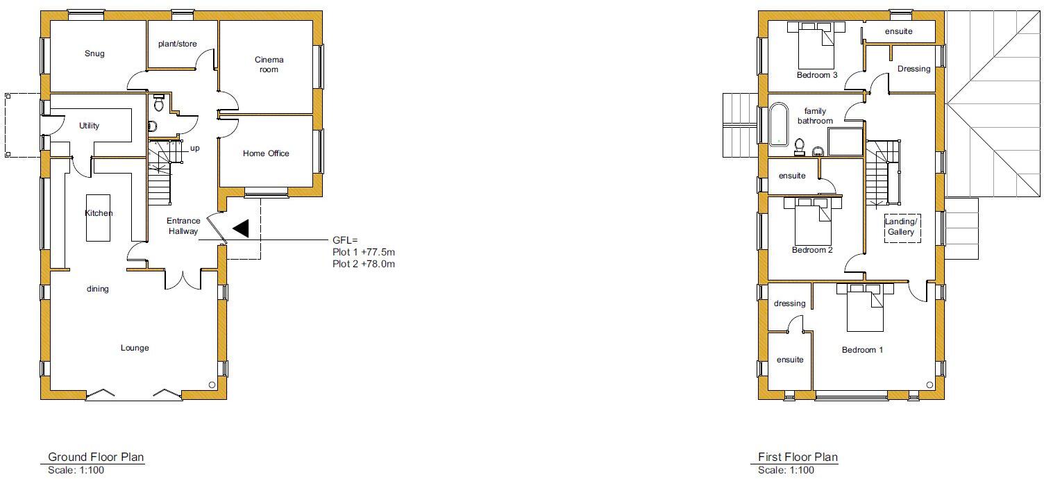
Planning permission for a 3/4-bedroom house was refused in 2024 on design grounds; an appeal is currently lodged and offers are invited subject to approval. Buyers should expect a planning-led purchase process and carry out their own due diligence — a CIL charge may apply and standard covenants, wayleaves and rights of way affect the site. The plot forms part of a broader farm holding with four residential caravans and a Certificate of Lawful Existing Use or Development for that area.
Practical considerations: the plot shares a private septic tank which may not meet current regulations, so budget for drainage replacement or upgrade. Access and services are subject to shared maintenance obligations and potential wayleaves. The location is remote with slow broadband and average mobile signal, so this suits buyers seeking isolation, lifestyle change or an equestrian/agricultural use rather than those needing fast connectivity.
This is a good opportunity for buyers who value landscape, privacy and land scale and who are prepared to manage a planning-led build. If your aim is a coastal-proximate rural home or smallholding on a substantial plot, this site warrants a viewing once you have satisfied yourself on planning, drainage and service arrangements.



























