Concierge, parking and strong rental appeal close to transport and amenities.
Open-plan kitchen and reception with outstanding city views
Allocated off-street parking space and separate storage cage
En-suite shower to main bedroom; second bathroom with free-standing bath
Lift access and on-site concierge service
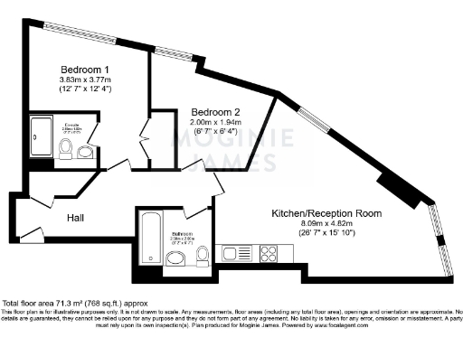
768 sq ft — average-sized two-bedroom apartment
Located in a cosmopolitan student neighbourhood — likely noise and footfall
Very high local crime rate and very deprived area classification
Tenure and council tax unknown — confirm before purchase
Set on the west petal of Altolusso, this two-bedroom apartment combines strong rental potential with a striking city outlook. The open-plan kitchen/reception and large windows create bright, versatile living space suitable for long-term tenants or professional sharers. At 768 sq ft the layout is an average-sized, practical home in the heart of Cardiff.
Practical conveniences include an en-suite shower to the principal bedroom, a second bathroom with a free-standing bath, allocated off-street parking and a private storage cage. Lift access, an on-site concierge and reliable fast broadband add to the building’s appeal for city workers and students alike.
Buyers should note material location factors: the flat sits in a cosmopolitan, student-dense neighbourhood with very high local crime figures and a very deprived area classification, which can affect insurance and resale values. Tenure and council tax band are not specified and should be confirmed. Noise and footfall typical of a central student area are likely.
Priced at £185,000, this apartment will suit investors seeking central rental returns or buyers wanting a low-maintenance city base with strong transport and amenity access. The property is largely modern and move-in ready, but purchasers should verify tenure and running costs before proceeding.
2 bedroom apartment for sale in Bute Terrace, Cardiff, CF10 — £185,000 • 2 bed • 1 bath • 678 ft²
2 bedroom flat for sale in Altolusso, Bute Terrace, Cardiff, CF10 — £155,000 • 2 bed • 2 bath
2 bedroom apartment for sale in Altolusso, Bute Terrace, City Centre, Cardiff, CF10 — £190,000 • 2 bed • 2 bath • 850 ft²
2 bedroom apartment for sale in Bute Terrace, Cardiff, CF10 — £170,000 • 2 bed • 1 bath • 666 ft²
2 bedroom flat for sale in Altolusso, Cardiff, CF10 — £180,000 • 2 bed • 2 bath • 808 ft²
2 bedroom flat for sale in Bute Terrace, Cardiff, CF10 — £150,000 • 2 bed • 2 bath • 797 ft²










































