S40 1AQ - 4 bedroom mixed use property for sale in West Bars, Chester…

View on Property Piper

4 bedroom mixed use property for sale in West Bars, Chesterfiled, S40

Summary - 15-17, WEST BARS S40 1AQ

4 bed 2 bath Mixed Use

**Standout Features:**
- Well-constructed, high-quality property built in 2019
- Mixed-use layout: Ground-floor retail space with two spacious apartments above
- Current total income of £35,500 per annum
- Each apartment boasts a roof terrace with stunning views
- Prime location in Chesterfield Town Centre
- Excellent connectivity and walkable amenities nearby

**Concise Description:**
Discover this exceptional mixed-use property located in the vibrant heart of Chesterfield, offering a lucrative investment opportunity. Built with quality in 2019, it features a retail space on the ground floor, currently leased at £16,000 per annum, complemented by two well-appointed two-bedroom apartments above. Each of these homes benefits from contemporary layouts and impressive roof terraces, generating additional rental incomes of £9,000 and £10,500 per annum, respectively.

While the property boasts modern finishes and an attractive income potential, prospective buyers should note that parking is not included, although public parking options are available nearby. With a growing community of highly qualified professionals in the vicinity, this property holds significant rental potential and flexibility for future renovations or expansions. This unique opportunity won't last long, so schedule a viewing today and envision the possibilities!

Property Details

Brochure Descriptions

Image Descriptions

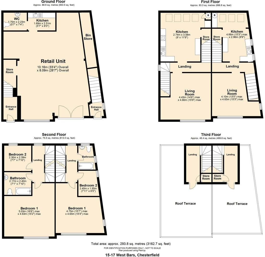
Floorplan Description

Rooms

Textual Property Features

Detected Visual Features

EPC Details

Nearby Schools

Nearest Bars And Restaurants

,,,,}

Nearest General Shops

,,}

Nearest Grocery shops

,,}

Nearest Supermarkets

,,}

Nearest Religious buildings

,,}

Nearest Medical buildings

,,,}

Nearest Leisure Facilities

,,,,}

Nearest Tourist attractions

,,}

Nearest Train stations

,,,,}

Nearest Bus stations and stops

,,,,}

Nearest Hotels

,,}

Tags

Local Market Stats

AirBnB Data

Similar Properties

Meta

High Res Images

Compatible Images

Low res Images

Thumbnails

Raw Images

High Res Floorplan Images

Compatible Floorplan Images

Low res Floorplan Images

FloorplanImages Thumbnail

Raw Floorplan Images