Light-filled two-bedroom home near Westfield and Shepherd's Bush transport hubs.
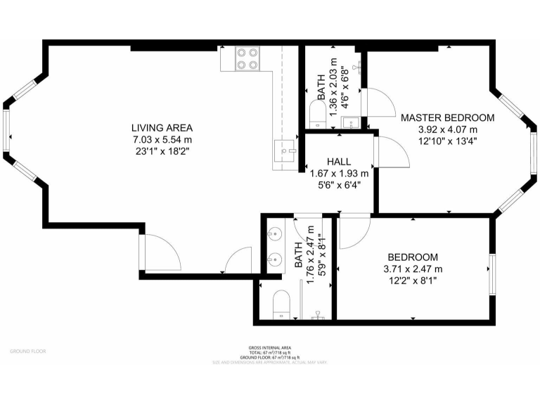
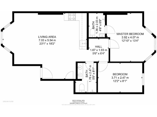
2 double bedrooms with en-suite to master
Newly renovated throughout; ready to move in
Share of freehold tenure
Access to communal garden
High ceilings, large windows, and wooden floors
Approx 723 sq ft; average-sized city apartment
Excellent transport links; 5–10 min walk to Shepherd's Bush
Area records above-average crime; check local safety measures
This newly renovated raised ground-floor apartment sits within a Victorian terrace on Elsham Road, offering a smart, move-in-ready two-bedroom home. High ceilings and large windows fill the generous living/dining space with light, while wooden floors and a fully integrated kitchen give a contemporary finish. The master bedroom includes an en-suite; a second double bedroom and a separate modern bathroom complete the layout.
Practical features add everyday convenience: share of freehold tenure, access to a communal garden, fast broadband, and a below-average service charge of £720. At approximately 723 sq ft, the apartment is an average-sized city home well suited to first-time buyers or a professional couple who want space to relax and entertain close to amenities.
Location is a major draw — Shepherd's Bush station is a 5–10 minute walk and Westfield shopping and dining are nearby. Several highly regarded primary and secondary schools lie within easy reach, making local family life feasible.
Notable considerations are listed clearly: the area records above-average crime rates, and council tax banding is not specified. Buyers should also confirm maintenance responsibilities under the share of freehold and review communal arrangements before committing.
2 bedroom flat for sale in Elsham Road, London, W14 — £750,000 • 2 bed • 2 bath • 723 ft²
2 bedroom apartment for sale in Elsham Road, London, W14 — £600,000 • 2 bed • 1 bath • 763 ft²
2 bedroom apartment for sale in Holland Road, Kensington, W14 — £580,000 • 2 bed • 2 bath • 685 ft²
3 bedroom apartment for sale in Ellerslie Road, London, W12 — £825,000 • 3 bed • 2 bath • 960 ft²
2 bedroom apartment for sale in Elsham Road, London, W14 — £650,000 • 2 bed • 2 bath • 831 ft²
2 bedroom apartment for sale in Godolphin Road, London, W12 — £550,000 • 2 bed • 1 bath • 529 ft²






































































































