City-centre flat with high ceilings and strong rental potential.
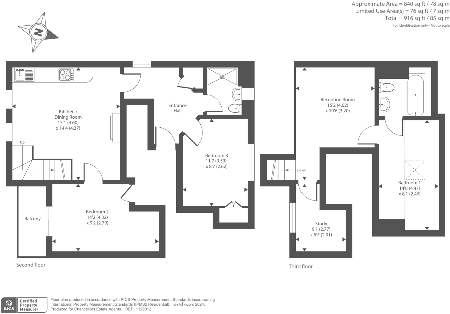
Three bedrooms across 916 sq ft of multi-level living
A spacious three-bedroom flat in the heart of Oxford, offering 916 sq ft of flexible living across a multi-story layout. High ceilings and large windows create a bright, airy feel; the open-plan kitchen and mezzanine add modern character within a period terrace setting. Finished with double glazing and gas central heating, the flat is ready to occupy for city-centre living.
The location is the primary draw: five minutes’ walk to Westgate shopping centre, restaurants and bars, and a short walk to the train station and Said Business School. Fast broadband and excellent mobile signal suit professionals, students or a buy-to-let investor targeting central demand. The property is offered with no onward chain and a long lease (162 years from 2014), giving security for long-term occupation or investment.
Practical points to note: this is a leasehold flat with 151 years remaining on the lease; there is a single bathroom for three bedrooms. The surrounding neighbourhood is a cosmopolitan student area with very high recorded crime levels — an important consideration for families and some buyers. Council tax is moderate and the building dates from circa 1983–1990, set within a Georgian-style terrace.
Overall this is a central, well-proportioned flat that will suit buyers seeking convenience and rental potential. It offers characterful high ceilings and modern open-plan space but requires buyers to weigh the single bathroom and local crime statistics when deciding on suitability.
3 bedroom apartment for sale in Venneit Close, Central Oxford, OX1 — £370,000 • 3 bed • 2 bath • 672 ft²
2 bedroom apartment for sale in Norfolk Street, Oxford, Oxfordshire, OX1 — £615,000 • 2 bed • 2 bath • 826 ft²
1 bedroom flat for sale in Leon Close, Oxford, OX4 — £270,000 • 1 bed • 1 bath • 468 ft²
2 bedroom apartment for sale in St Thomas Street, Central Oxford, OX1 — £475,000 • 2 bed • 1 bath • 580 ft²
1 bedroom apartment for sale in New Inn Hall Street, Oxford, OX1 — £550,000 • 1 bed • 1 bath • 690 ft²
3 bedroom terraced house for sale in Leopold Street, East Oxford, OX4 — £675,000 • 3 bed • 2 bath • 1220 ft²


























































