**Standout Features:**
- Charming Victorian terraced house
- Two bedrooms, two bathrooms
- Modern kitchen and contemporary living space
- Well-maintained garden for relaxation
- Convenient location near local amenities
- Freehold tenure, offering flexibility
**Potential Downsides:**
- Compact plot size with limited outdoor space
- High local crime rate
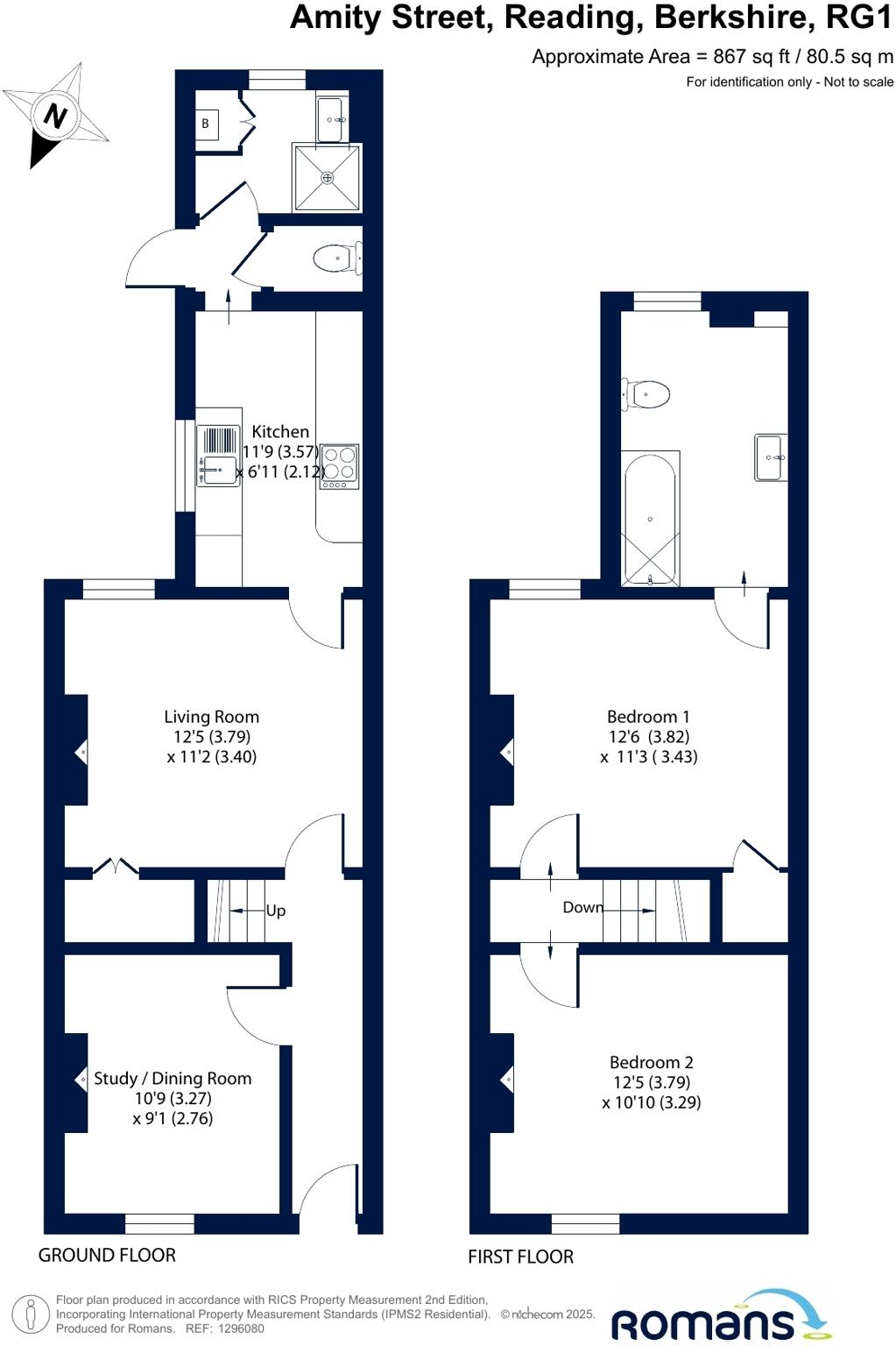
Discover comfort and convenience in this immaculate Victorian terraced house situated in a vibrant community. Featuring two cozy bedrooms and two well-appointed bathrooms, the home's layout is designed for both relaxation and entertaining. The contemporary kitchen and inviting living room are suffused with natural light, creating a bright and airy atmosphere.
Enjoy a peaceful garden for leisurely afternoons, while easy access to shops, schools, and transport links make this property ideal for young families or professionals desiring a well-connected lifestyle. Though the plot size is compact, it efficiently utilizes space, providing all the essentials within a charming setting. With a slightly elevated crime rate in the area, you may want to consider additional security measures. Don't miss your chance to own this charming abode—properties like this don’t last long!
2 bedroom terraced house for sale in Coventry Road, Reading, Berkshire, RG1 — £300,000 • 2 bed • 1 bath • 684 ft²
2 bedroom terraced house for sale in Wykeham Road, Reading, Berkshire, RG6 — £300,000 • 2 bed • 1 bath • 750 ft²
2 bedroom terraced house for sale in Cumberland Road, Reading, Berkshire, RG1 — £325,000 • 2 bed • 2 bath • 864 ft²
2 bedroom terraced house for sale in Cholmeley Road, Reading, Berkshire, RG1 — £350,000 • 2 bed • 2 bath • 782 ft²
3 bedroom terraced house for sale in Norton Road, Reading, RG1 — £300,000 • 3 bed • 1 bath • 819 ft²
2 bedroom terraced house for sale in Western Road, Reading, Berkshire, RG1 — £300,000 • 2 bed • 1 bath • 673 ft²














































































