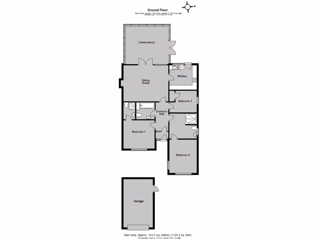
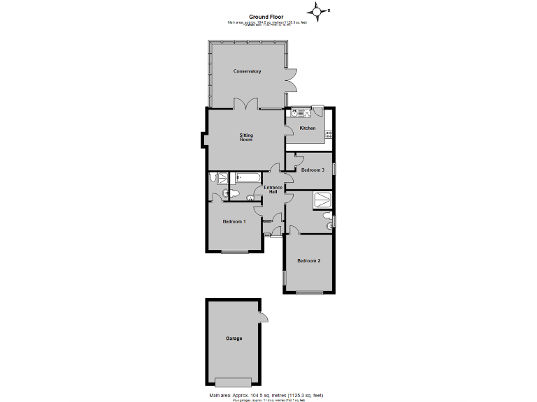
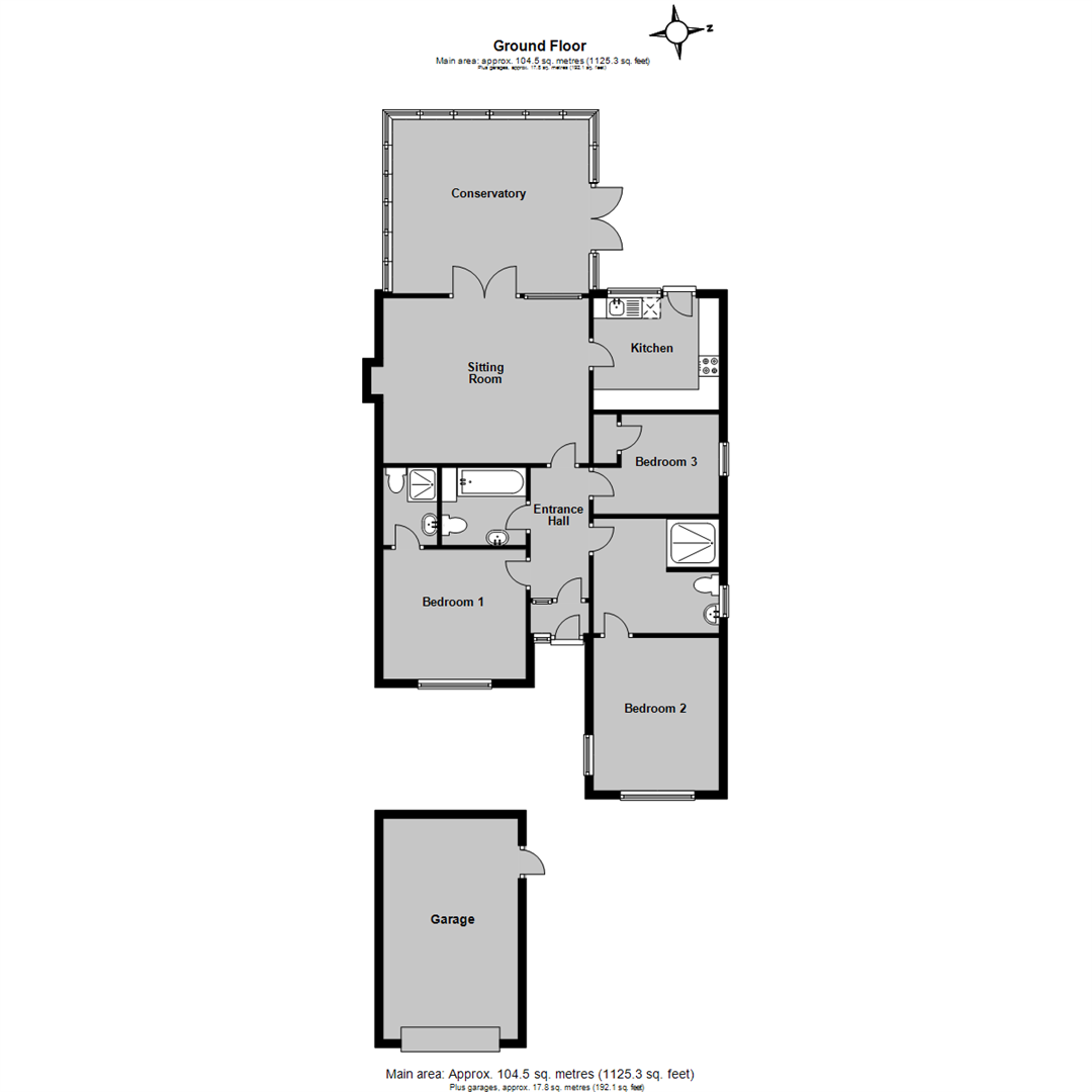
**Standout Features:**
- Spacious detached bungalow in a peaceful cul-de-sac
- 3 bedrooms (2 with en-suite shower rooms)
- Smartly presented interior with a conservatory
- Westerly-facing garden extending to 41ft (13m)
- Garage and ample off-street parking
- Chain-free sale, ideal for quick possession
This charming detached bungalow, nestled in a tranquil cul-de-sac, offers a fantastic opportunity for comfortable living. With smartly designed interiors, the home boasts a generous sitting room, a bright conservatory, and a well-equipped kitchen. It features three bedrooms, including two with en-suite bathrooms, perfect for family living or guest accommodations. The exterior provides a low-maintenance garden, ideal for relaxation, and a paved driveway coupled with a detached garage for convenient parking.
Located in the desirable village of Cliffsend, you’ll have easy access to local amenities, scenic Pegwell Bay, and the high-speed Thanet Parkway Station for quick commutes to London. The property is competitively priced at £350,000 and is being offered with no onward chain, making it an excellent investment for first-time buyers or those looking to downsize in a peaceful setting. With such features and flexibility for potential customizations, this home won’t last long on the market – schedule your viewing today!
2 bedroom bungalow for sale in Foads Hill, Cliffsend, Ramsgate, Kent, CT12 — £315,000 • 2 bed • 1 bath • 805 ft²
4 bedroom detached bungalow for sale in Foads Hill, Cliffsend, Ramsgate, CT12 — £465,000 • 4 bed • 2 bath • 1469 ft²
2 bedroom detached bungalow for sale in Clive Road, Cliffsend, Ramsgate, CT12 5EQ, CT12 — £300,000 • 2 bed • 1 bath • 550 ft²
2 bedroom detached bungalow for sale in Foads Hill, Cliffsend, Ramsgate, Kent, CT12 — £350,000 • 2 bed • 1 bath • 1088 ft²
3 bedroom bungalow for sale in Cliff View Road, Cliffsend, Ramsgate, Kent, CT12 — £375,000 • 3 bed • 1 bath • 1321 ft²
2 bedroom bungalow for sale in Foads Hill, Cliffsend, Ramsgate, Kent, CT12 — £300,000 • 2 bed • 1 bath • 628 ft²


























































