**Standout Features:**
- Fifth-floor studio apartment in the vibrant Baltic Triangle
- Currently tenanted at £750pcm, promising a near 10% net return
- Modern amenities with 24-hour concierge service
- Laminate flooring, contemporary bathroom with shower
- Access to a stunning communal roof terrace with panoramic city views
- Close proximity to Liverpool city centre, shops, bars, and restaurants
**Potential Downsides:**
- Cash purchase only
- Leasehold property with a ground rent of £350
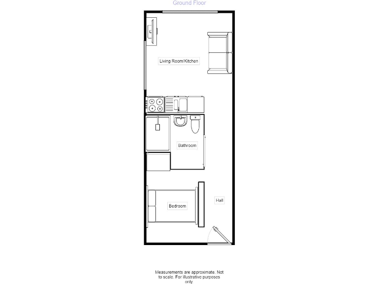
This contemporary studio apartment, nestled in the lively Baltic Triangle, presents an excellent investment opportunity. Currently generating £750 per month in rent, it offers almost a 10% net return, making it ideal for investors seeking steady income. The apartment features a cozy sleeping area, a bright open-plan living and kitchen space adorned with modern appliances, and a stylish bathroom equipped with a shower. A Juliette balcony enhances the living area, allowing you to savor the city atmosphere.
With communal perks such as a 24-hour concierge and a breathtaking roof terrace overlooking the Liverpool skyline, you’ll relish both comfort and convenience. Local amenities are just a stone's throw away, including shops, restaurants, and the Liverpool One shopping complex. While the property does require cash buyers due to leasehold status—with an average ground rent of £350—its unique blend of urban appeal and rental potential is hard to resist. Don’t miss out on making this exclusive property yours!
Studio apartment for sale in Simpson Street, Liverpool, Merseyside, L1 — £55,000 • 1 bed • 1 bath • 302 ft²
Studio apartment for sale in Plaza Boulevard, Liverpool, L8 — £50,000 • 1 bed • 1 bath
Studio apartment for sale in St. James Street, Liverpool, L1 — £49,995 • 1 bed • 1 bath
1 bedroom apartment for sale in Norfolk Street, Liverpool, L1 — £75,000 • 1 bed • 1 bath • 410 ft²
Studio apartment for sale in Norfolk Street, Liverpool, Merseyside, L1 — £45,000 • 1 bed • 1 bath • 332 ft²
Studio flat for sale in Baltic 56, 20 Norfolk Street, Liverpool, L1 0BE, L1 — £60,000 • 1 bed • 1 bath • 366 ft²


































