**Standout Features:**
- Semi-detached bungalow with two bedrooms
- Close to amenities in Heswall
- Driveway and garage for off-road parking
- Low-maintenance rear garden
- No ongoing chain for a smooth sale
- Requires renovation, offering customization potential
- Located in a low-crime, affluent community
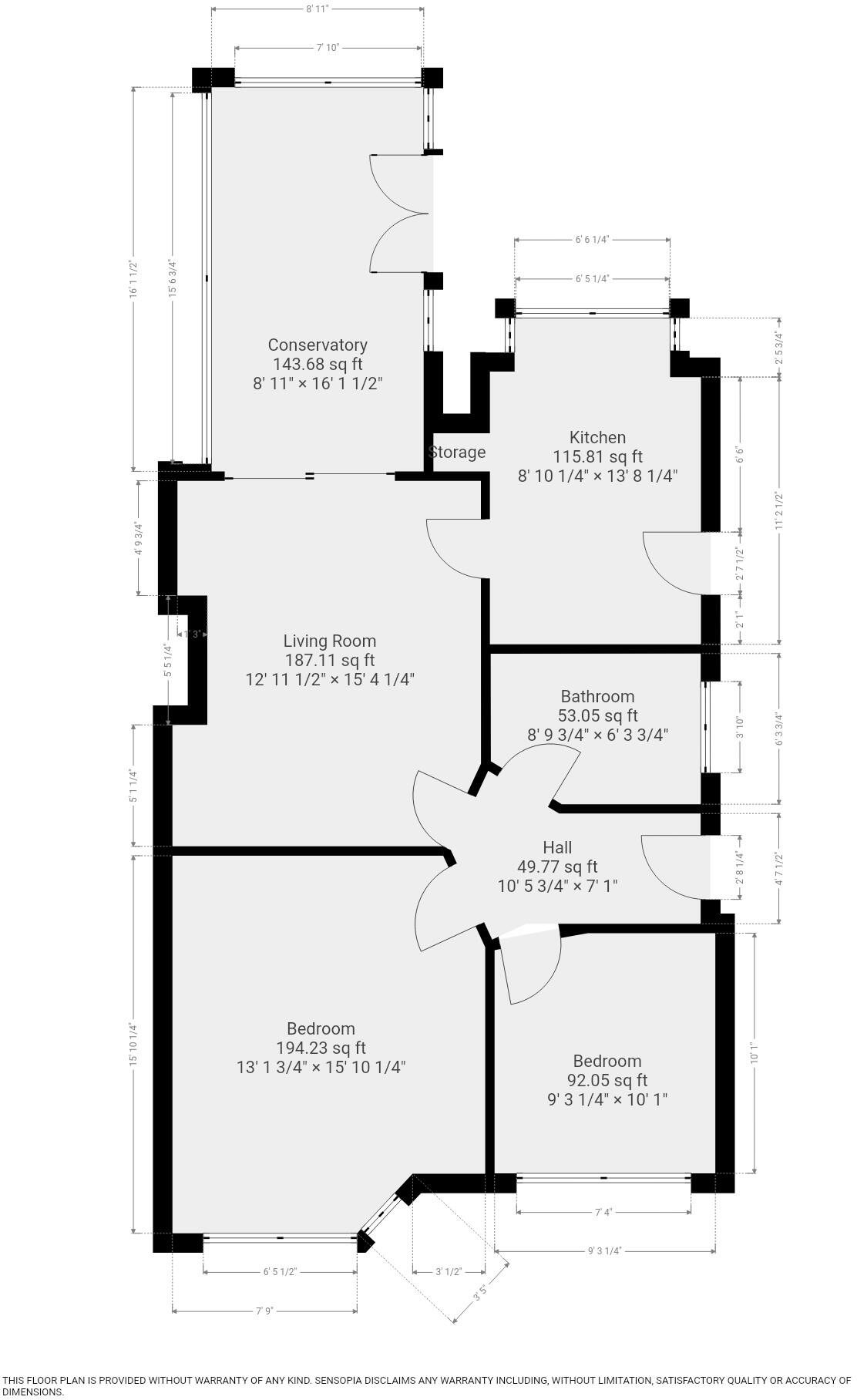
Nestled in a desirable residential area of Heswall, this semi-detached bungalow presents an excellent opportunity for first-time buyers, downsizers, or investors seeking a renovation project. With two double bedrooms and a spacious lounge flowing into a light-filled conservatory, this home is designed for comfort and ease. The practical layout includes a kitchen and bathroom positioned at the rear, allowing for future updates to match your unique style.
The property features a well-kept front garden, alongside a driveway and garage for added convenience. The rear garden is ideal for outdoor leisure while providing a manageable space for gardening. The absence of an ongoing chain ensures a hassle-free transaction, making this property even more appealing. While the bungalow is in need of some TLC, it boasts tremendous potential to be transformed into a charming home in a highly sought-after area. Hurry—this bungalow won't last long!
2 bedroom semi-detached bungalow for sale in Grange Road, Heswall, CH60 — £300,000 • 2 bed • 1 bath • 823 ft²
2 bedroom detached house for sale in Heathway, WIRRAL, Merseyside, CH60 — £585,000 • 2 bed • 1 bath • 1235 ft²
2 bedroom bungalow for sale in Sandham Grove, Heswall, Wirral, CH60 — £300,000 • 2 bed • 1 bath • 873 ft²
2 bedroom bungalow for sale in Larksway, Heswall, Wirral, CH60 — £525,000 • 2 bed • 1 bath • 1026 ft²
2 bedroom bungalow for sale in Mill Lane, Heswall, Wirral, CH60 — £460,000 • 2 bed • 1 bath • 1022 ft²
3 bedroom bungalow for sale in Dovesmead Road, Heswall, Wirral, CH60 — £500,000 • 3 bed • 2 bath • 1367 ft²






















































