Spacious four-bedroom on a large elevated plot with excellent parking and ferry access.
Quarter-acre plot with elevated countryside views
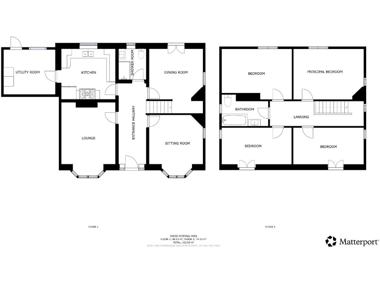
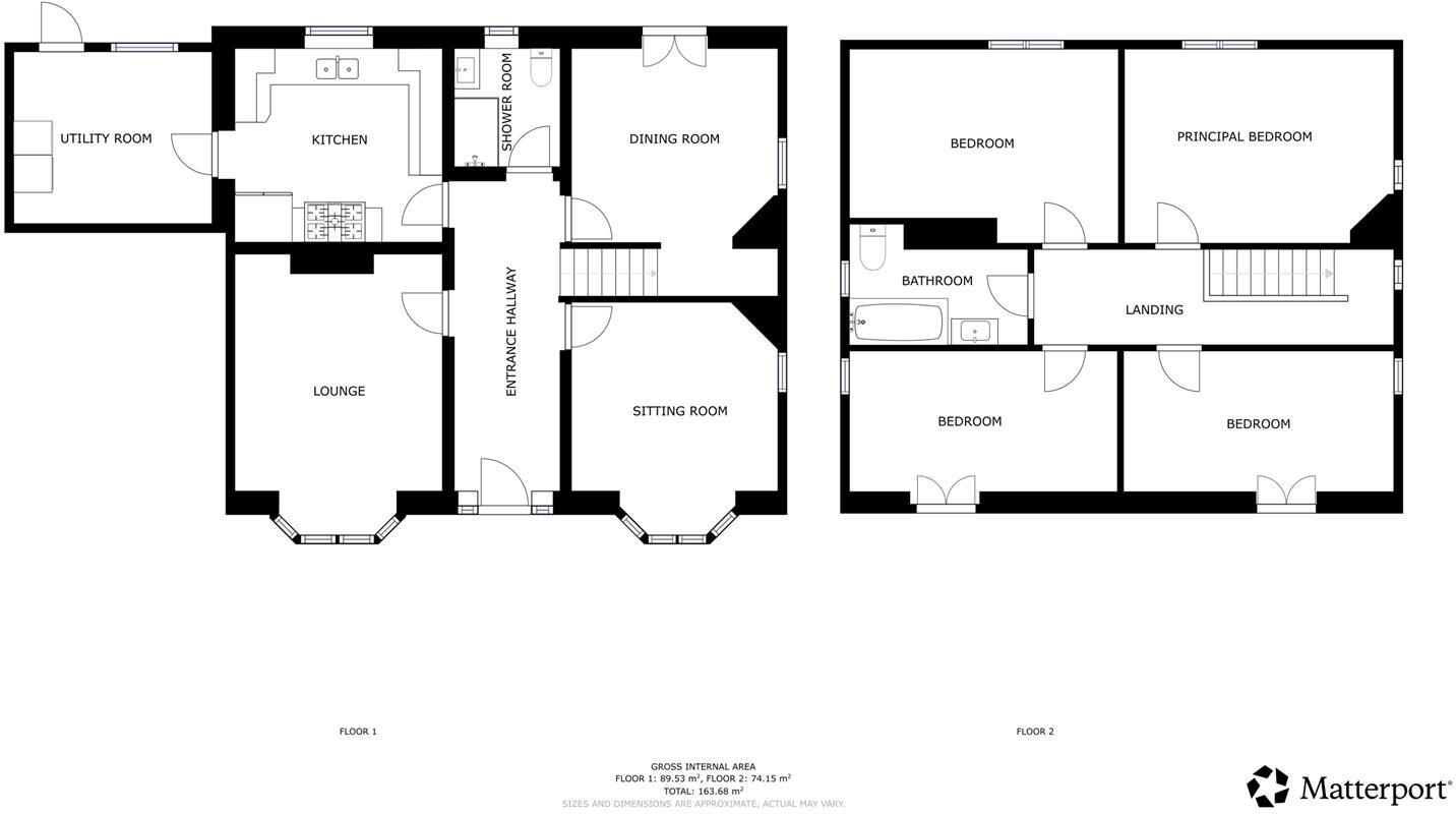
Set on a generous quarter-acre plot with elevated views over neighbouring countryside, this newly refurbished four-bedroom house suits growing families seeking space and accessibility. The accommodation includes three separate reception rooms and a smart new kitchen with quartz worktops, creating comfortable living and practical entertaining areas.
Parking is a strong asset: a large forecourt provides space for six-plus cars and room for a camper van or small boat. The house’s layout is flexible, with sizable double bedrooms and both a ground-floor shower room and a first-floor bathroom to ease busy mornings.
Built circa 1935, the property has been extensively updated but retains period proportions and character. Prospective buyers should note some material points: wall cavities are assumed uninsulated (original construction), main services and appliances have not been tested, and Council Tax is Band E, above average. These factors may affect running costs and require buyers’ due diligence.
Overall, this semi-rural home offers turn-key style living with scope for further improvement to suit specific needs. Its strong parking provision and good island transport links make it a practical family base close to local schools and ferry connections.
4 bedroom detached house for sale in Rural Outskirts of Wootton, PO33 — £799,995 • 4 bed • 2 bath • 1773 ft²
4 bedroom detached house for sale in High Street, Ryde, Isle of Wight, PO33 — £439,000 • 4 bed • 3 bath • 1206 ft²
4 bedroom detached house for sale in Wootton Bridge, Isle of Wight, PO33 — £595,000 • 4 bed • 2 bath • 1636 ft²
4 bedroom detached house for sale in Church Road, Wootton Bridge, PO33 — £725,000 • 4 bed • 2 bath • 3584 ft²
4 bedroom detached house for sale in Packsfield Lane, Wootton Bridge, Ryde, PO33 — £590,000 • 4 bed • 2 bath • 2511 ft²
4 bedroom detached house for sale in Oaklands Close, Fishbourne, PO33 — £600,000 • 4 bed • 3 bath • 1631 ft²


















































































