Modern two/three-bedroom home with driveway, garage and private low‑maintenance garden..
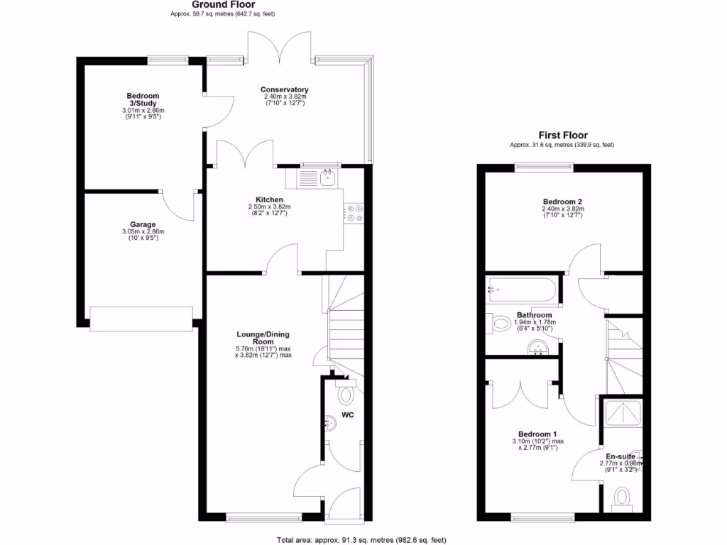
Two double bedrooms plus flexible ground-floor bedroom/study
Principal bedroom with en‑suite shower room
Conservatory currently used as dining extension
Driveway parking for multiple cars and garage/storage
Private, low-maintenance rear garden (small plot)
Freehold, mains gas central heating and double glazing
Very low local crime, fast broadband, nearby nature reserve
Conservatory layout limits separate formal dining space
Situated on a quiet Fleet cul-de-sac, this modern semi-detached home offers flexible living across two floors and around 982 sq ft of space. Two double bedrooms upstairs include a principal bedroom with en‑suite, while the ground floor provides a versatile third bedroom or home study and a convenient cloakroom. The conservatory extends the living/dining area, creating a bright family space that looks onto a private, low‑maintenance garden.
Practical aspects are strong: driveway parking for multiple cars, attached garage/storage, mains gas central heating and double glazing installed post‑2002. The freehold tenure, very low local crime and fast broadband make this attractive for working professionals and families. Nearby Elvetham Heath nature reserve and several well‑rated primary and secondary schools add lifestyle and schooling appeal.
Buyers should note the plot is compact and the rear garden is low maintenance rather than generous; outdoor space suits ease of upkeep rather than large‑scale landscaping. The conservatory currently serves as the dining area, which may suit some buyers but limits a separate formal dining room. Overall the property presents a tidy, modern home with sensible running costs and good local amenities, ready to occupy or adapt to personal tastes.
3 bedroom semi-detached house for sale in Montrose Close, Fleet, Hampshire, GU51 — £500,000 • 3 bed • 2 bath • 887 ft²
2 bedroom semi-detached house for sale in Laverstoke Close, Fleet, Hampshire, GU51 — £375,000 • 2 bed • 1 bath • 797 ft²
3 bedroom detached house for sale in Ravelin Close, Fleet, GU51 1JP, GU51 — £545,000 • 3 bed • 2 bath • 865 ft²
4 bedroom semi-detached house for sale in Cotswold Close, Farnborough, GU14 — £485,000 • 4 bed • 2 bath • 1421 ft²
3 bedroom end of terrace house for sale in Fleet Road, Farnborough, GU14 — £415,000 • 3 bed • 1 bath • 932 ft²
5 bedroom detached house for sale in Chawton Close, Fleet, Hampshire, GU51 — £850,000 • 5 bed • 3 bath • 2154 ft²


































































