**Standout Features:**
- Location: Directly opposite Gedling Country Park
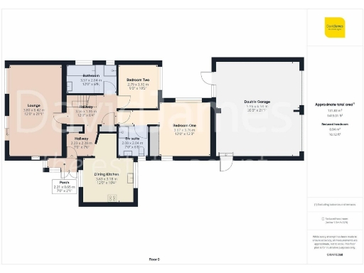
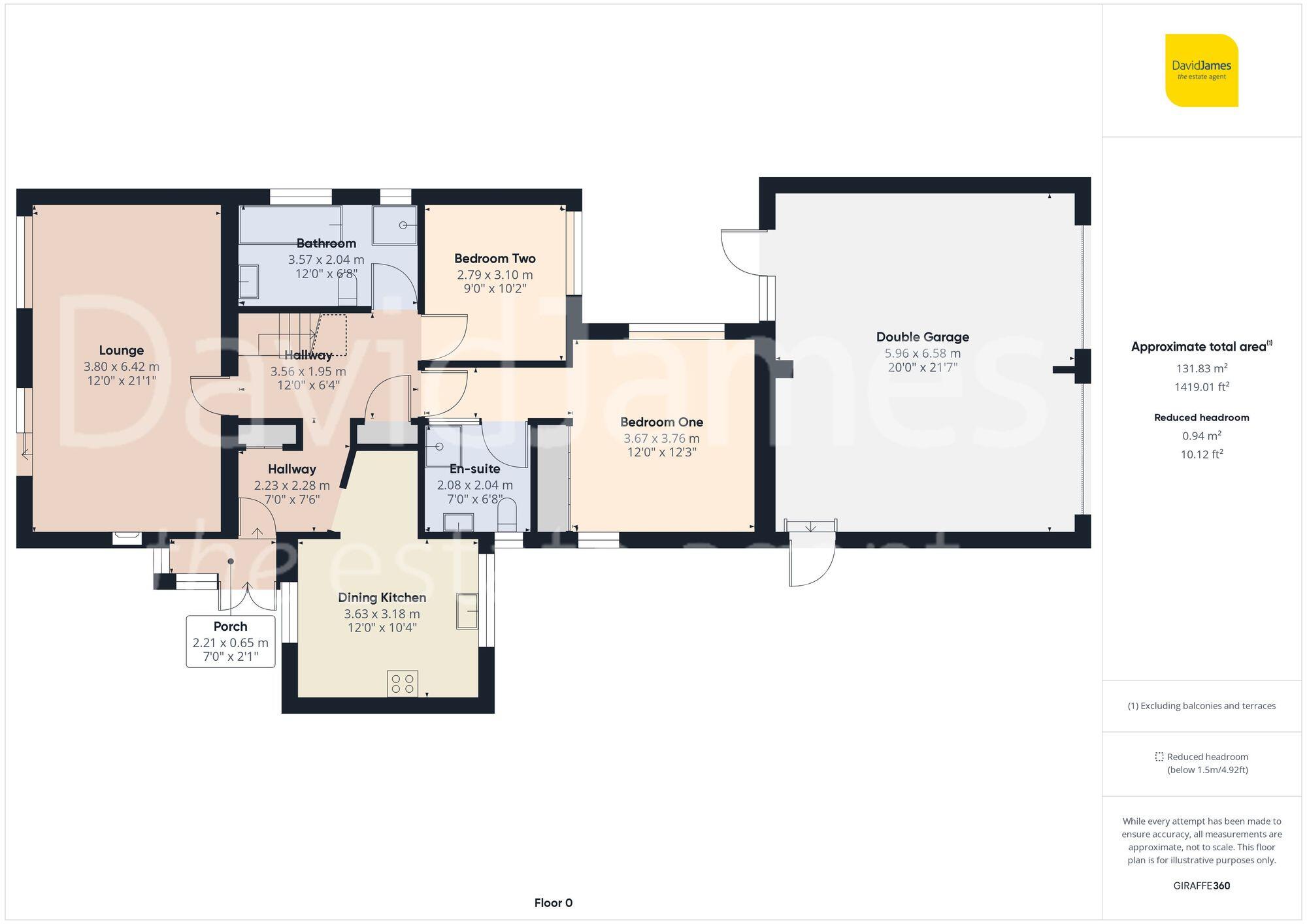
- Spacious detached bungalow with 2 double bedrooms
- Principal bedroom with fitted wardrobes and en-suite shower room
- Cozy lounge with fireplace and gas fire, leading to a garden view
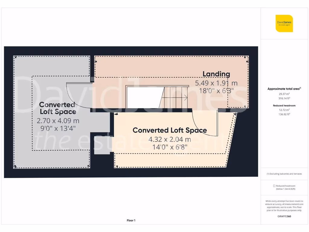
- Versatile loft space, potential for additional bedrooms (subject to regulations)
- Well-equipped kitchen with a dining area
- Luxurious ground floor bathroom with spa bath and separate shower
- Large enclosed rear garden, ideal for relaxation and entertaining
- Ample off-road parking with double garage
Nestled in a tranquil setting directly across from the scenic Gedling Country Park, this spacious detached bungalow offers a comfortable lifestyle with room for personalization. Featuring two well-sized double bedrooms, including a principal suite with built-in wardrobes and en-suite shower, the home boasts a welcoming entrance hallway that leads to an inviting lounge adorned with a fireplace and patio doors that open into your own private garden.
The well-designed kitchen provides modern convenience with ample storage and a dining peninsula, while the luxurious bathroom includes a spa bath for ultimate relaxation. Don’t forget the expansive loft space, which presents exciting possibilities for further development into bedrooms or office space, subject to the necessary approvals.
The property's outdoor areas are equally inviting, with a large lawned garden and patio perfect for entertaining guests or unwinding outdoors. Complete with generous off-road parking and a double garage, this bungalow is equipped for comfort and practicality. With its peaceful surroundings and potential for future enhancements, this property is a must-see for families and investors alike. Act quickly to secure this serene home at a competitive price range of £425,000 - £450,000, as opportunities like this may not last long!
4 bedroom detached bungalow for sale in Mansfield Road, Papplewick, Nottingham, NG15 — £450,000 • 4 bed • 2 bath • 2217 ft²
3 bedroom detached bungalow for sale in Ashwater Drive, Gedling, Nottinghamshire, NG3 5SJ, NG3 — £350,000 • 3 bed • 1 bath • 788 ft²
3 bedroom detached bungalow for sale in Freda Avenue, Gedling, Nottingham, NG4 — £325,000 • 3 bed • 1 bath • 971 ft²
2 bedroom bungalow for sale in Skegby Road, HUTHWAITE, Nottinghamshire, NG17 — £240,000 • 2 bed • 1 bath • 951 ft²
3 bedroom bungalow for sale in Wood Lane, Gedling, Nottingham, Nottinghamshire, NG4 — £625,000 • 3 bed • 2 bath • 1953 ft²
2 bedroom detached bungalow for sale in Salcombe Drive, Redhill, Nottingham, NG5 — £375,000 • 2 bed • 1 bath • 1543 ft²










































































































