Newly built, energy-efficient three-bed home opposite green space — ideal for families..
- Newly built detached family home (2024) with NHBC remainder
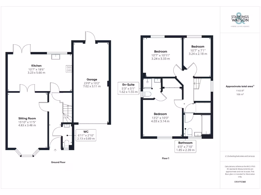
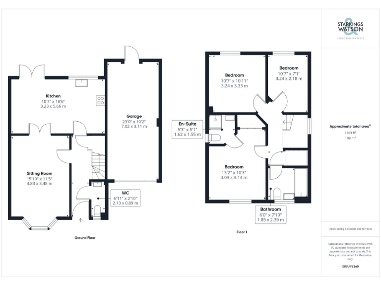
- Over 1,160 sqft including single garage and driveway
- Two reception rooms: sitting room plus kitchen/dining with garden access
- Three bedrooms, en-suite to main bedroom and family bathroom
- Underfloor heating via air source heat pump; energy-efficient build
- Fully landscaped rear garden and patio with pergola; modest size
- EV charger wiring fitted; fast broadband and excellent mobile signal
- Residents management fee ~£215 pa; moderate council tax
This recently built (2024) detached family home offers modern living across more than 1,160 sqft (including garage) and sits opposite a pleasant green space for a relaxed outlook. Built with energy-efficient features — an air source heat pump with underfloor heating and good thermal performance — the house is still covered by the remainder of a 10-year NHBC warranty, so major structural issues are unlikely in the near term.
The ground floor layout focuses on family life and entertaining: a bright sitting room with bay window and interlinking kitchen/dining room that opens onto a fully landscaped rear garden and patio with pergola. Fitted kitchen appliances include an eye-level double oven, electric hob and dishwasher; there is a practical ground-floor WC and useful understairs storage. Upstairs there are three well-proportioned bedrooms, a family bathroom and an en-suite to the principal bedroom.
Practical conveniences include a single garage, driveway with EV charger wiring in place, fast broadband, excellent mobile signal and a modest annual residents’ management fee of around £215. Schools in the area include several well-regarded primaries and a nearby secondary rated Good by Ofsted, making the location suitable for families.
Notable limitations are the average-sized plot and garden for a modern infill home — outdoor space is well presented but not large — and a moderate council tax level. The property is new and finished to a contemporary standard, but buyers seeking larger gardens, significant period character or immediate extension potential should factor that into their decision.
4 bedroom detached house for sale in Pottery Hill, Wattisfield, Diss, IP22 — £700,000 • 4 bed • 3 bath • 2267 ft²
3 bedroom semi-detached house for sale in Summerhouse Close, Botesdale, Diss, IP22 — £325,000 • 3 bed • 1 bath • 821 ft²
3 bedroom detached house for sale in Barley Birch Drive, Botesdale, IP22 — £375,000 • 3 bed • 2 bath • 755 ft²
3 bedroom detached house for sale in Stoke Road, Thorndon, Eye, IP23 — £325,000 • 3 bed • 1 bath • 967 ft²
3 bedroom detached house for sale in Daffodil Close, Stowupland, Stowmarket, IP14 — £350,000 • 3 bed • 2 bath • 926 ft²
3 bedroom detached house for sale in Queens Road, Bacton, Stowmarket, IP14 — £365,000 • 3 bed • 2 bath • 821 ft²


































































































