Modern two-bedroom flat with parking and concierge — ideal for investors or commuters.
Central town-centre location, walking distance to train and bus stations
Two double bedrooms, both with en suites
Large living/dining room and separate kitchen — practical layout
Underground parking with two allocated spaces and lift access
Concierge service and modern development (built 2007–2011)
Leasehold with approximately 96 years remaining; check ground rent/service charges
Electric room heaters (no gas central heating) — higher running costs possible
Local area flagged as very high crime; consider security/insurance implications
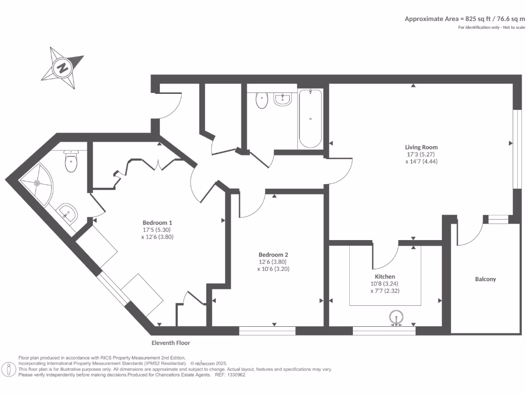
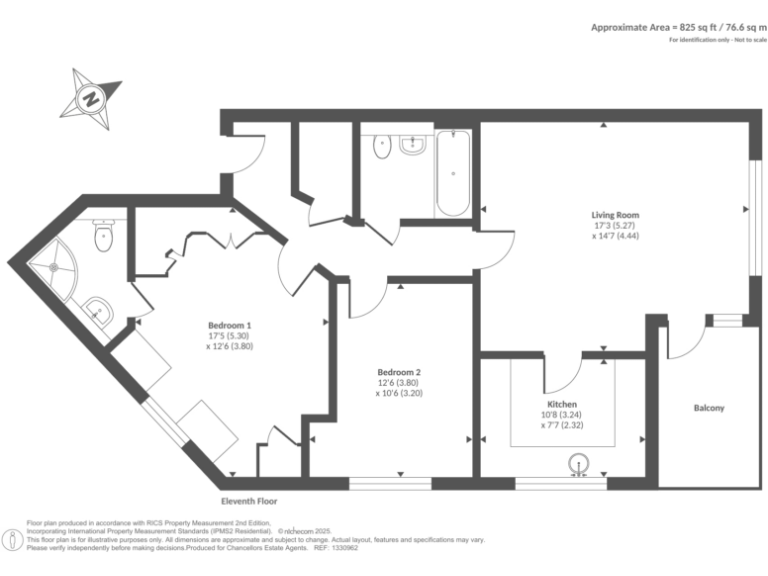
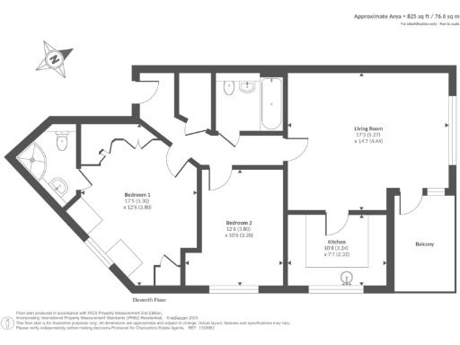
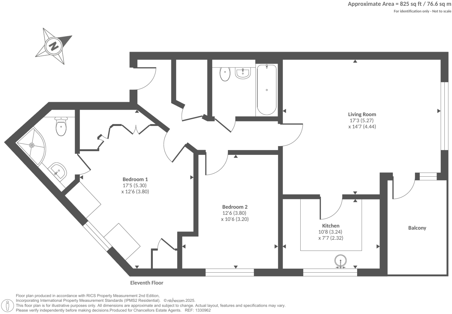
This two-bedroom apartment in the Crown Heights development places city-centre living and transport links on your doorstep. At around 828 sq ft it offers two double bedrooms—each with an en suite—plus a large living/dining room and separate kitchen, arranged in a straightforward traditional layout suitable for renters or commuters.
The building includes concierge service, lifts and underground parking with direct lift access; two allocated parking spaces/garage access add convenience for car owners. The flat benefits from double glazing and contemporary build quality (constructed 2007–2011), and its central position puts Festival Place, shops and the mainline station within easy walking distance.
Notable practical points: the property is leasehold with approximately 96 years remaining and is being sold with no onward chain, which may appeal to investors seeking a quick purchase. Heating is by electric room heaters rather than gas central heating, and council tax is moderate. Local area data indicates very high crime levels despite a broadly affluent area, so buyers should consider security and insurance implications.
Overall this is a pragmatic buy for investors or commuting professionals who prioritise location, transport access and low immediate maintenance. The flat is habitable as-is but offers scope for cosmetic updating to increase rental yield or resale value.
2 bedroom flat for sale in Basingstoke, Hampshire, RG21 — £190,000 • 2 bed • 2 bath • 704 ft²
2 bedroom flat for sale in Timberlake Road, Basingstoke, Hampshire, RG21 — £180,000 • 2 bed • 2 bath • 638 ft²
2 bedroom flat for sale in Skyline Plaza, Basingstoke, RG21 — £245,000 • 2 bed • 2 bath • 739 ft²
2 bedroom block of apartments for sale in Basingstoke, Hampshire, RG21 — £240,000 • 2 bed • 1 bath • 731 ft²
2 bedroom flat for sale in Basingstoke, Hampshire, RG21 — £180,000 • 2 bed • 2 bath • 710 ft²
2 bedroom apartment for sale in Anchor Court, 28 London Street, Basingstoke, Hampshire, RG21 — £229,950 • 2 bed • 2 bath • 904 ft²


































































