Bright two-bedroom home a short walk from park and transport links.
- Two double bedrooms with flexible layouts
- Bay-windowed living room with high ceilings and cornicing
- Freehold tenement; approx 748 sq ft
- Double glazing and gas central heating installed
- Communal rear garden; secure door entry
- Second-floor access only — stair climb required
- Located beside Queens Park and Crossmyloof station
- Area classified as very deprived; consider resale risk
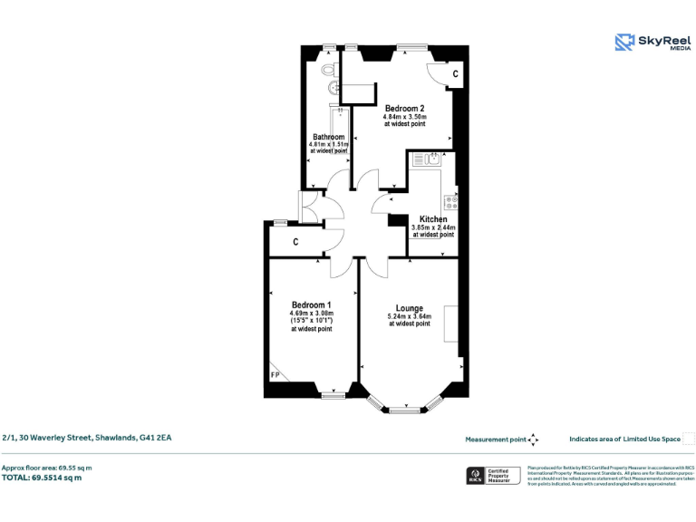
This bright two-bedroom tenement apartment sits on the second floor of a red sandstone building in sought-after Shawlands. High ceilings, a bay-windowed living room, original cornicing and a feature fireplace give genuine period character alongside practical modern comforts such as double glazing and gas central heating.
At around 748 sq ft the layout provides two flexible double bedrooms, a welcoming hallway with storage, a fitted kitchen and a tiled bathroom with an electric shower. A communal rear garden and secure door entry add convenience, while Crossmyloof station and Queens Park are an easy walk away.
Buyers should note the flat is accessed via stairs to the second floor and the wider neighbourhood scores as a very deprived area, which may concern some purchasers or impact resale in the short term. The property is offered freehold, has an EPC C and affordable council tax, making it attractive to first-time buyers or investors seeking a character apartment with rental potential.
Overall this is a well-presented Victorian apartment that blends original features with modern upgrades. It will suit someone wanting a central Shawlands base close to cafés, transport and green space, while being comfortable to move into with only minor cosmetic updating likely required.
2 bedroom apartment for sale in Grantley Gardens, Shawlands, Glasgow, G41 — £199,000 • 2 bed • 1 bath • 774 ft²
2 bedroom flat for sale in Kilmarnock Road, Shawlands, Glasgow, G41 — £190,000 • 2 bed • 1 bath • 779 ft²
2 bedroom flat for sale in 37 Mount Stuart Street, Flat 2/2, Shawlands, Glasgow, G41 3AN, G41 — £189,000 • 2 bed • 1 bath • 732 ft²
2 bedroom apartment for sale in Grantley Gardens, Shawlands, Glasgow, G41 — £199,000 • 2 bed • 1 bath • 781 ft²
2 bedroom flat for sale in 1/1, 21 Cartha Street, Shawlands, G41 3HH, G41 — £185,000 • 2 bed • 1 bath • 807 ft²
2 bedroom flat for sale in 8 Waverley Gardens, Flat 2/2, Shawlands, Glasgow, G41 2EG, G41 — £189,000 • 2 bed • 1 bath • 699 ft²






































































