Quiet street, garden and garage ideal for commuting families.
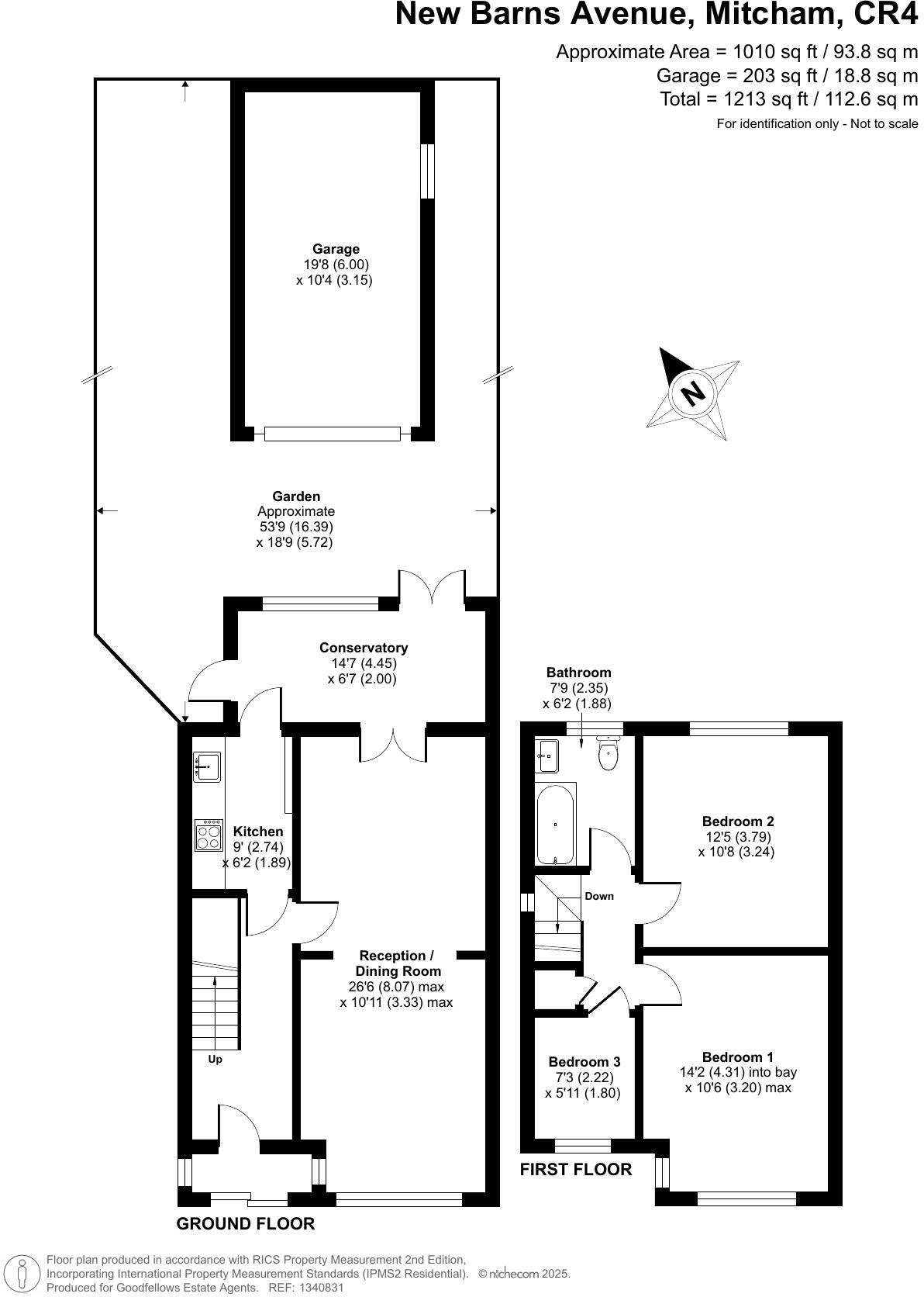
Three bedrooms across two storeys, approximately 1,010 sq ft
This three-bedroom end-of-terrace on New Barns Avenue offers practical family living close to Mitcham Common and strong transport links into Central London, East Croydon and Wimbledon. Arranged over two storeys and extending to about 1,010 sq ft, the house includes a through-lounge with bay window, a conservatory, a galley kitchen, three bedrooms and a family bathroom. The private rear garden, detached garage and off-street parking add everyday convenience for commuting families.
The property is freehold, in Council Tax Band D and has an EPC rating of D. Constructed in the 1930s from solid brick, the house benefits from double glazing and mains gas central heating with a boiler and radiators. The plot is compact for an urban setting but the garage (with adjacent roofed storage/sitting area) and access via a private service road create useful storage and additional parking options.
There are some maintenance and improvement considerations to budget for: the wall construction is assumed to have no cavity insulation and the EPC rating is middling, so upgrading insulation and heating efficiency would add value and reduce running costs. Brochure text highlights the property in good order, while imagery and ancillary notes indicate areas that would benefit from modernisation and decluttering to maximise market appeal.
Set in a commuter-friendly neighbourhood with good local schools and low crime, this home will suit buyers looking for a practical family house with scope to improve energy performance and finish. Early viewing is recommended to assess how the layout and garden suit your needs and renovation plans.
 3 bedroom end of terrace house for sale in Manor Way, Mitcham, CR4 — £500,000 • 3 bed • 1 bath • 895 ft²
 3 bedroom end of terrace house for sale in Manor Way, Mitcham, CR4 — £500,000 • 3 bed • 1 bath • 895 ft² 3 bedroom terraced house for sale in Barnard Road, Mitcham, CR4 — £475,000 • 3 bed • 1 bath • 929 ft²
 3 bedroom terraced house for sale in Barnard Road, Mitcham, CR4 — £475,000 • 3 bed • 1 bath • 929 ft² 3 bedroom end of terrace house for sale in Manor Road, Mitcham, CR4 — £500,000 • 3 bed • 1 bath • 1488 ft²
 3 bedroom end of terrace house for sale in Manor Road, Mitcham, CR4 — £500,000 • 3 bed • 1 bath • 1488 ft² 3 bedroom terraced house for sale in Manor Way, Mitcham, CR4 — £475,000 • 3 bed • 1 bath • 930 ft²
 3 bedroom terraced house for sale in Manor Way, Mitcham, CR4 — £475,000 • 3 bed • 1 bath • 930 ft² 3 bedroom end of terrace house for sale in Hallowell Close, Mitcham, CR4 — £550,000 • 3 bed • 2 bath • 1506 ft²
 3 bedroom end of terrace house for sale in Hallowell Close, Mitcham, CR4 — £550,000 • 3 bed • 2 bath • 1506 ft² 3 bedroom semi-detached house for sale in Manor Way, Mitcham, CR4 — £525,000 • 3 bed • 1 bath • 1049 ft²
 3 bedroom semi-detached house for sale in Manor Way, Mitcham, CR4 — £525,000 • 3 bed • 1 bath • 1049 ft²














































































