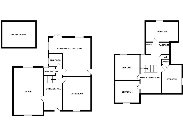
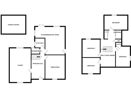
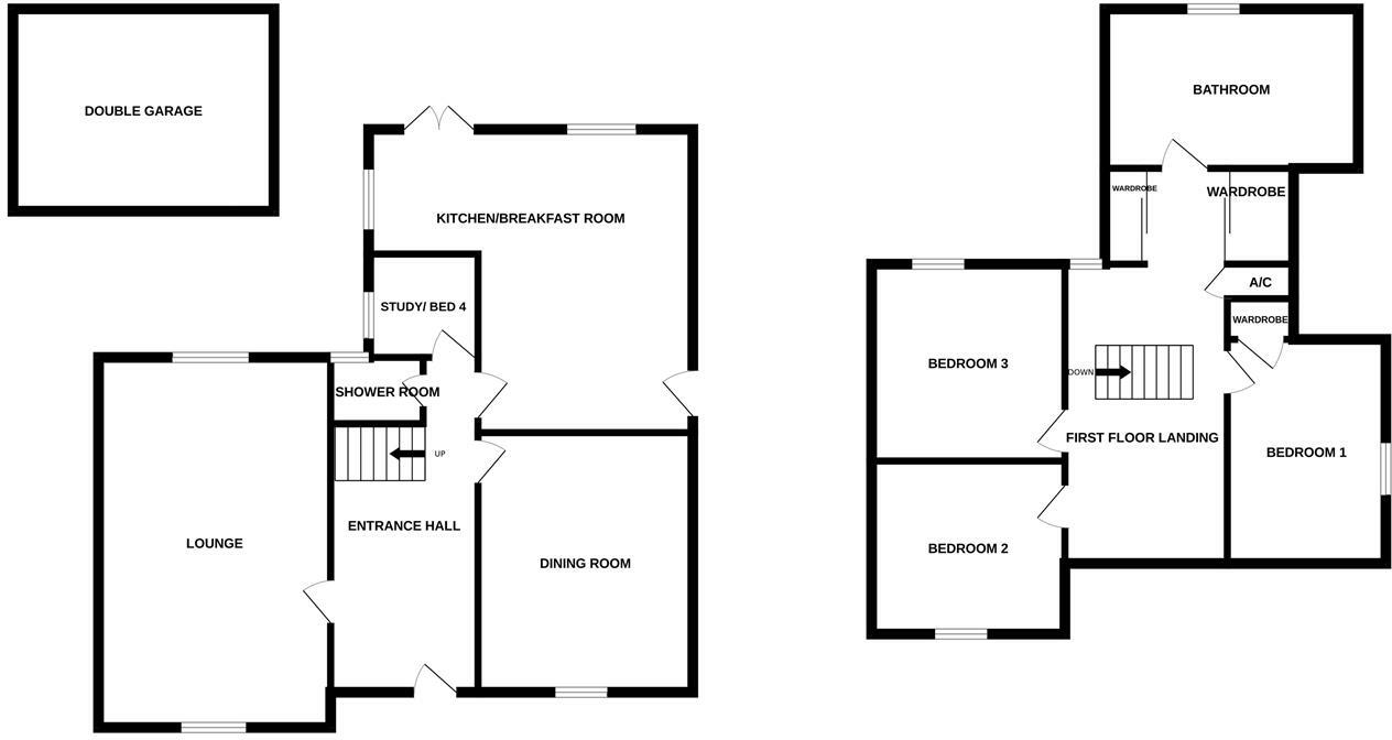
**Standout Features:**
- Grade II listed character cottage
- Three/Four bedrooms, including a versatile study
- Expansive 100' rear garden
- Impressive 22'5 lounge with an inglenook fireplace
- Modern 24'2 kitchen/breakfast room
- Detached double garage and ample parking
- Chain-free sale with recent planning permission for rear extension
- Quiet village location, close to local amenities and schools
Nestled in the charming village of Kirby Cross, this captivating Grade II listed semi-detached cottage offers three to four bedrooms and a generous 100-foot rear garden—ideal for families or those seeking a peaceful retreat. Step inside to discover a cozy 22'5 lounge featuring an inviting inglenook fireplace, perfect for chilly evenings, and a bright, modern 24'2 kitchen/breakfast room that flows into a lovely dining space. The versatile study can serve as a fourth bedroom or home office, accommodating various lifestyle needs.
This home combines classic character with modern amenities, complemented by gas central heating and a detached double garage, ensuring practicality and comfort. Future owners will appreciate the convenience of a local primary school, village shops, and Kirby Cross train station just a short stroll away, along with Frinton on Sea's vibrant shopping and beautiful beachfront only a mile away.
However, as the property holds listed status, please be aware that any renovations may involve additional considerations with planning permissions. Don't miss the opportunity to make this delightful cottage your own. Schedule a viewing today!
3 bedroom cottage for sale in The Street, Kirby-le-soken, CO13 — £350,000 • 3 bed • 2 bath
3 bedroom detached house for sale in The Street, Kirby-le-Soken, CO13 — £195,000 • 3 bed • 1 bath • 915 ft²
3 bedroom semi-detached house for sale in Walton Road, Kirby-Le-Soken, CO13 — £340,000 • 3 bed • 1 bath • 948 ft²
3 bedroom detached house for sale in The Street, Kirby-le-soken, CO13 — £195,000 • 3 bed • 1 bath • 915 ft²
4 bedroom detached house for sale in The Street, Kirby-le-Soken, CO13 — £500,000 • 4 bed • 2 bath • 1454 ft²
3 bedroom detached house for sale in Frietuna Road, Kirby Cross, CO13 — £375,000 • 3 bed • 1 bath • 998 ft²






































































































