**Standout Features:**
- Mixed-use freehold property in PO3 5EG
- Ground floor retail unit plus tenanted upper two-bedroom apartment
- Tudor Revival architecture with potential for renovation
- Prime high street location with excellent foot traffic
- Strong connectivity via road and public transport
**Concerns:**
- Commercial space requires renovation
- Above-average crime rate in the area
- Nearby schools have mixed Ofsted ratings, with one rated as inadequate
Discover a valuable investment opportunity in Portsmouth with this mixed-use freehold property, combining a vacant ground floor retail unit and a tenanted two-bedroom apartment above. Located in the vibrant PO3 postcode, the property boasts a Tudor Revival design and offers significant renovation potential for the retail space, perfect for creating a trendy café or boutique that can capitalize on the high street's foot traffic.
Situated in an affluent area with excellent transport links, accessing the A2030 and M27 motorway, this property is ideal for aspiring urban households or savvy investors looking for rental income. The vicinity is enhanced by a diverse array of amenities including independent shops, cafes, and local green spaces, ensuring appeal to long-term tenants. However, potential buyers should note the above-average crime rate and varied school performance, which could impact tenant desirability. Don’t miss this chance to invest in a dynamic neighbourhood ripe for growth!
Out-of-town retail property for sale in Kingston Road, Portsmouth, PO2 — £225,000 • 1 bed • 1 bath • 1454 ft²
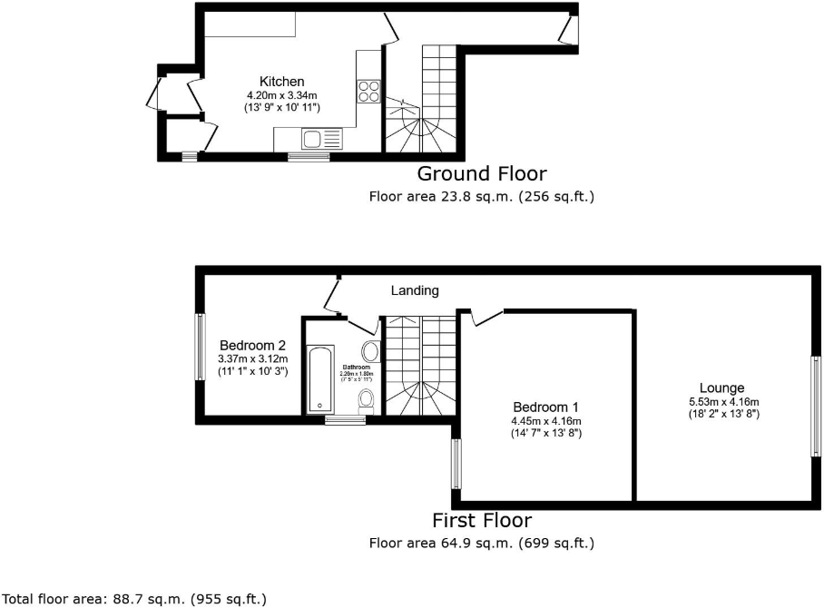
2 bedroom mixed use property for sale in 154 & 154a Copnor Road, Portsmouth, Hampshire, PO3 — £260,000 • 2 bed • 1 bath • 1052 ft²
High street retail property for sale in 170 Copnor Road, Portsmouth, Hampshire, PO3 — £170,000 • 1 bed • 1 bath • 1160 ft²
Commercial property for sale in 29 London Road, Portsmouth, Hampshire, PO2 0BH, PO2 — £305,000 • 1 bed • 1 bath • 2203 ft²
5 bedroom terraced house for sale in Kingston Road, Portsmouth, PO2 — £224,995 • 5 bed • 1 bath • 1454 ft²
Shop for sale in 404 London Road, Portsmouth, PO2 — £140,000 • 1 bed • 1 bath • 1407 ft²














































