RG17 0QS - 2 bedroom penthouse for sale in Bewick Mews, Hungerford, Be…

View on Property Piper

2 bedroom penthouse for sale in Bewick Mews, Hungerford, Berkshire, RG17

Summary - 10, Bewick Mews, HUNGERFORD RG17 0QS

2 bed 2 bath Penthouse

### Standout Features

- Spacious penthouse living with modern finishes
- Two double bedrooms and two stylish bathrooms
- Vaulted ceilings providing impressive natural light
- Gated parking with two designated spaces
- No onward chain for a quick purchase
- Located within an affluent area

### Summary

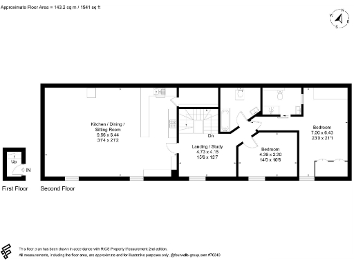
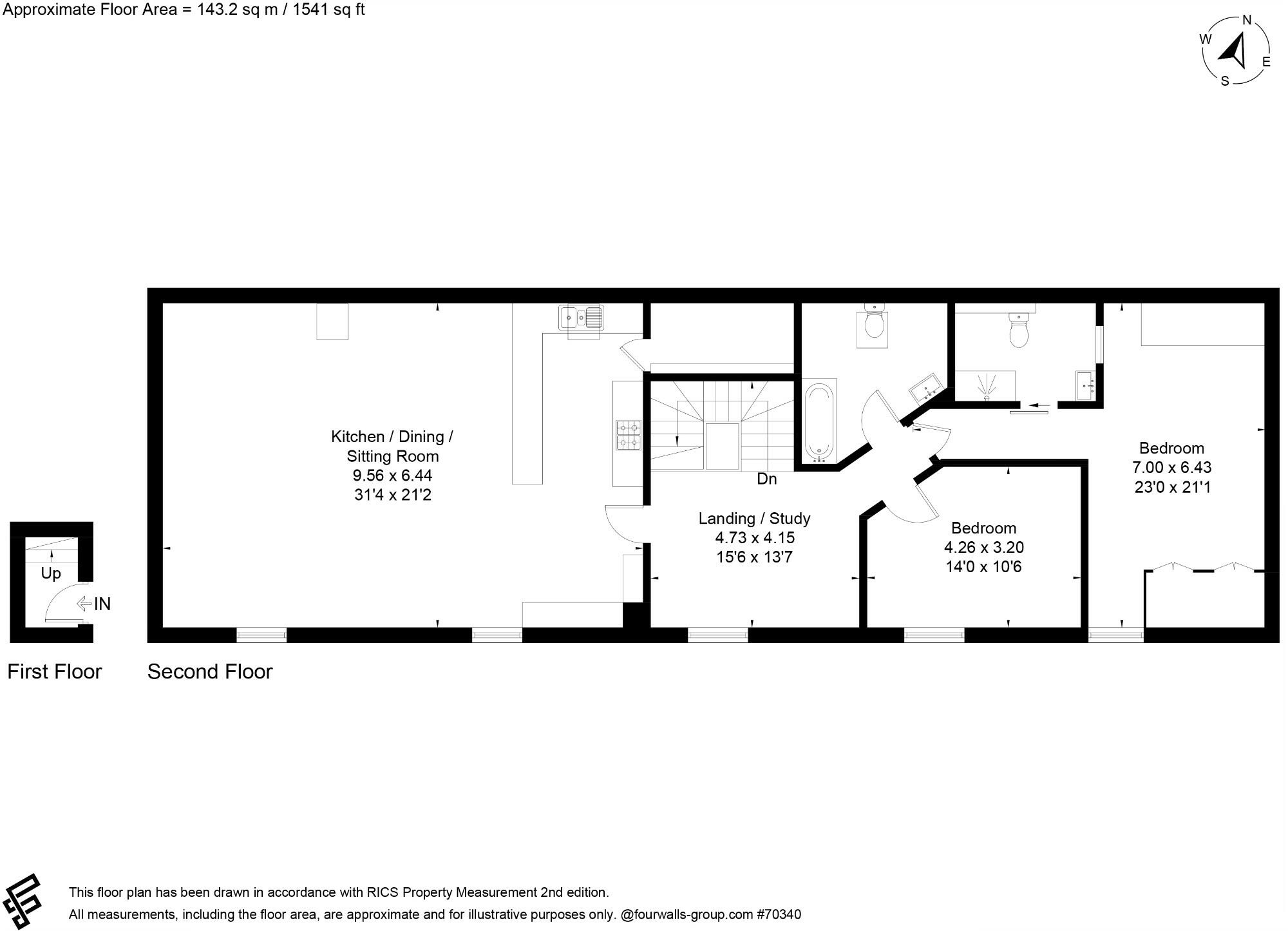
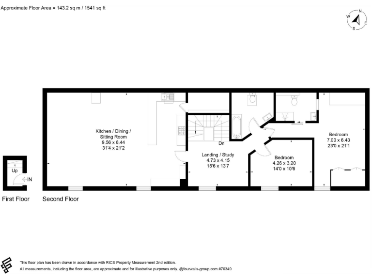
This remarkable 2-bedroom penthouse in RG17 offers an exceptional blend of style and practicality, spanning a generous 1,541 square feet. The property boasts a striking modern façade with large windows that flood the interiors with light. Step inside to discover a stunning open-plan kitchen, dining, and living space adorned with a vaulted ceiling, high-end appliances, and contemporary finishes. Both bedrooms are spacious, with the master featuring a chic en-suite, while a larger-than-average bathroom adds further convenience.

Positioned within a secure, gated community, residents benefit from controlled access and two dedicated parking spaces. The ambitiously designed communal areas, including a mezzanine with sleek glass panels, elevate the living experience. Nestled in an affluent small town, this penthouse is within easy reach of good-rated local schools and numerous amenities, making it ideal for families and professionals alike.

While the property has excellent mobile connectivity, potential buyers should note the slow broadband speeds. Viewings are highly encouraged to fully appreciate the dazzling design and generous space this penthouse offers. Don’t miss out on this unique opportunity—schedule your visit today!

Property Details

Brochure Descriptions

Image Descriptions

Floorplan Description

Rooms

Textual Property Features

Detected Visual Features

Nearby Schools

Nearest Bars And Restaurants

,,,,}

Nearest General Shops

,,}

Nearest Grocery shops

,,}

Nearest Supermarkets

,,}

Nearest Religious buildings

,,}

Nearest Medical buildings

,,,}

Nearest Leisure Facilities

,,,,}

Nearest Tourist attractions

,,}

Nearest Train stations

,,,,}

Nearest Bus stations and stops

,,,,}

Nearest Hotels

,,}

Tags

Local Market Stats

Similar Properties

Meta

High Res Images

Compatible Images

Low res Images

Thumbnails

Raw Images

High Res Floorplan Images

Compatible Floorplan Images

Low res Floorplan Images

FloorplanImages Thumbnail

Raw Floorplan Images