**Standout Features:**
- Three bedrooms and two bathrooms
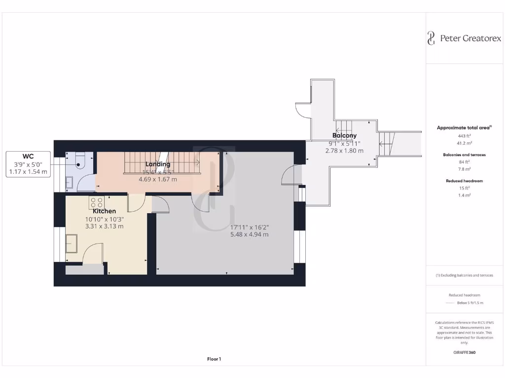
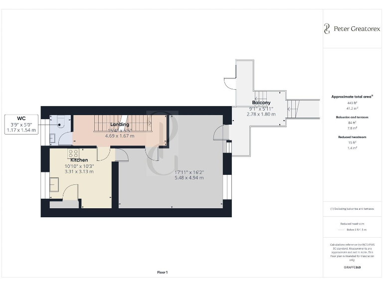
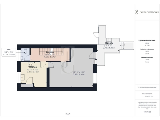
- Bright L-shaped sitting room with private balcony
- Fully fitted kitchen with modern appliances
- Private lawn at the rear and garage
- Prime location with easy access to city center and M4
- Low crime rate and suitable for families or investors
**Notable Concerns:**
- Requires cosmetic updating
- Slow broadband speeds
- Average kitchen and bathroom condition
Nestled in the highly sought-after Lansdown district of Bath, this three-bedroom maisonette offers a perfect blend of comfort and potential. The bright, L-shaped sitting room features large windows that open onto a private balcony overlooking a garden, creating an inviting space for family gatherings or relaxation. The fully fitted kitchen provides practical functionality, though some cosmetic updates could enhance the property's charm. With a private lawn and garage included, this mid-terrace apartment is ripe for customization.
Ideal for first-time buyers or investors looking for a lock-up-and-leave option, this residence benefits from a prime location with easy access to the city center and M4, ensuring convenience for commuting and daily living. The friendly neighborhood, marked by low crime and close proximity to essential amenities, makes it a comfortable setting for families. Don’t miss this opportunity to transform this space into your dream home. Act quickly to secure a property in such a desirable location!
3 bedroom apartment for sale in Lansdown Grove, Bath, BA1 — £725,000 • 3 bed • 2 bath • 1301 ft²
2 bedroom apartment for sale in Lansdown Road, Bath, BA1 — £350,000 • 2 bed • 1 bath • 933 ft²
2 bedroom semi-detached house for sale in Upper Lansdown Mews, Bath, BA1 — £895,000 • 2 bed • 1 bath • 1179 ft²
3 bedroom flat for sale in Lansdown Road, Bath, BA1 — £650,000 • 3 bed • 2 bath • 1054 ft²
3 bedroom semi-detached house for sale in Beckford Stables, Upper Lansdown Mews, Bath, BA1 — £650,000 • 3 bed • 2 bath • 1211 ft²
1 bedroom flat for sale in Camden Row, Bath, BA1 — £272,500 • 1 bed • 1 bath • 520 ft²














































































