Large three-bedroom cottage with big garden and garage — chain-free, ideal for renovation.
NO ONWARDS CHAIN — immediate possession possible
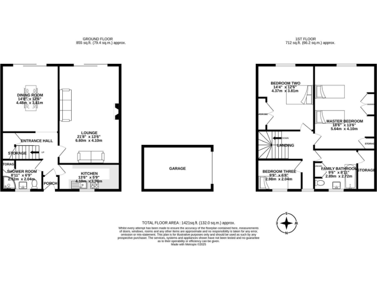
This three-bedroom semi-detached cottage on Church Brow offers substantial living space (approx. 1,421 sq ft) and a very large plot — rare for the area. Presented chain-free and owned by the same family for decades, the layout suits a growing family: spacious lounge and dining areas that open to a private, mostly-flagged south-facing garden, plus a detached single garage and additional parking.
The house is solid-brick (1930s–1940s) with older double glazing and gas central heating via a boiler and radiators. It has been well maintained but requires modernization throughout — the kitchen and bathrooms are dated and there is no modern wall insulation (assumed). EPC rating D. These factors give scope for improvement and value-add for buyers wanting to update to contemporary standards.
Location is practical: walking distance to primary schools rated Good, local shops and amenities, frequent bus routes, and quick access to the M6/M61. Low flood risk, fast broadband and excellent mobile signal are positives for family life and working from home. Notable local issues include higher-than-average crime in the area and mixed secondary school ratings, so families should factor community considerations into their decision.
Overall this is a roomy, character-filled family home with clear renovation potential. It will suit purchasers seeking space and a large garden with immediate chain-free possession — buyers should budget for modernisation and possible insulation/upgrading works.
2 bedroom semi-detached bungalow for sale in Renshaw Drive, Walton-Le-Dale, Preston, PR5 — £189,950 • 2 bed • 1 bath • 731 ft²
2 bedroom semi-detached bungalow for sale in Albany Drive, Walton-Le-Dale, Preston, PR5 — £139,950 • 2 bed • 1 bath • 717 ft²
3 bedroom detached house for sale in Renshaw Drive, Walton-le-Dale, Preston, Lancashire, PR5 — £315,000 • 3 bed • 2 bath • 1395 ft²
3 bedroom semi-detached house for sale in Severn Drive, Walton le Dale, PR5 — £199,950 • 3 bed • 1 bath • 883 ft²
3 bedroom semi-detached house for sale in Coniston Drive, Walton-Le-Dale, Preston, PR5 — £229,950 • 3 bed • 1 bath • 1051 ft²
2 bedroom semi-detached house for sale in Marlborough Drive, Walton-Le-Dale, Preston, PR5 — £155,000 • 2 bed • 1 bath • 824 ft²






















































































































