Period townhouse close to Deal seafront — chain-free and ready to personalise.
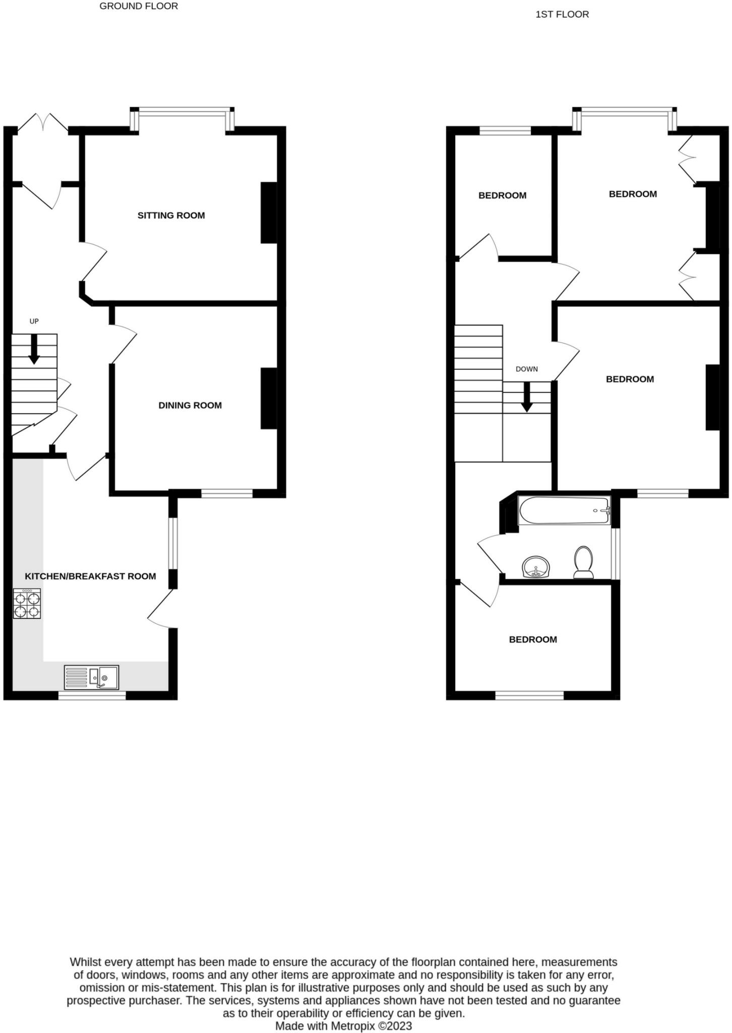
Chain-free four-bedroom Edwardian mid-terrace with period bay windows
Spacious kitchen/breakfast room opening onto enclosed rear garden
Three double bedrooms; fourth is a good-sized single
Single family bathroom only — may be tight for larger families
Gas central heating and double glazing throughout
Small plot/front forecourt; rear garden approx. 30ft with gated access
Located short walk to seafront, station, shops and local schools
Local crime reported as very high — consider security/insurance costs
Set on popular Stanhope Road and offered chain-free, this Edwardian mid-terrace provides flexible family accommodation across two storeys. The house retains period character with bay windows, high ceilings and a brick fireplace, while a generous kitchen/breakfast room opens directly onto an enclosed rear garden with gated access.
Three double bedrooms plus a fourth single give comfortable sleeping space for a growing family. Principal rooms enjoy good natural light from street-facing bays; heating and glazing are modern (gas central heating and double glazing). The property is an average-sized terrace (approx. 1,292 sq ft) within easy walking distance of Deal seafront, station and town amenities.
Practical considerations are clear: the plot is small and the garden is typical for a town terrace (approaching 30ft), there is a single family bathroom, and the house will suit buyers prepared for sympathetic updating rather than a fully turnkey finish. Crime levels in the immediate area are reported as very high, which may concern some purchasers and could influence security or insurance costs.
Overall this is a well-presented period home with immediate move-in potential and scope to modernise to personal taste. It will suit families seeking proximity to schools, the seafront and town centre, or buyers looking for a characterful house to improve over time.
4 bedroom terraced house for sale in Stanhope Road, Deal, CT14 — £550,000 • 4 bed • 2 bath • 1366 ft²
4 bedroom end of terrace house for sale in Blenheim Road, Deal, Kent, CT14 — £375,000 • 4 bed • 1 bath • 1054 ft²
4 bedroom terraced house for sale in Blenheim Road, Deal, Kent, CT14 — £375,000 • 4 bed • 2 bath • 1710 ft²
2 bedroom terraced house for sale in Middle Street, Deal, CT14 — £295,000 • 2 bed • 1 bath • 549 ft²
4 bedroom town house for sale in Canada Road, Deal, CT14 — £449,500 • 4 bed • 4 bath • 1633 ft²
4 bedroom terraced house for sale in London Road, Deal, CT14 — £550,000 • 4 bed • 4 bath • 2282 ft²






















































