Newly renovated one-bedroom flat close to shops and Didcot Parkway.
999-year lease to be registered on completion
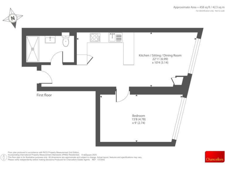
This newly built one-bedroom apartment sits on the first floor of a converted former bank in central Didcot, finished to a high standard with tall ceilings and modern fittings. The open-plan living and kitchen area maximises the apartment’s 458 sqft, offering a bright, economical city-base with fast broadband and excellent mobile signal.
Practical details are straightforward: a 999-year lease to be registered on completion, a below-average service charge (£848.12 pa) and peppercorn ground rent. Gas central heating via boiler and radiators, double glazing and recent renovation mean the apartment is ready to move into with minimal immediate maintenance.
This property suits a first-time buyer seeking low-maintenance, commuter-friendly living — shops, cafes and Didcot Parkway are within easy reach. It is offered chain-free for a quicker completion. Note the flat is compact (one double bedroom, one bathroom) so it’s best for individuals or couples rather than families needing extra space.
Investors should note the favorable long lease and low service charge, but returns will depend on local rental demand and parking arrangements, which are not specified. Crime and deprivation metrics are average in the area; there is no flood risk and several highly rated schools nearby, including an outstanding girls’ secondary school.
1 bedroom flat for sale in Broadway, Didcot, OX11, OX11 — £185,000 • 1 bed • 1 bath • 477 ft²
2 bedroom flat for sale in Broadway, Didcot, OX11, OX11 — £215,000 • 2 bed • 1 bath • 787 ft²
2 bedroom apartment for sale in Flat D Mary Kennedy House, Didcot, OX11 — £215,000 • 2 bed • 1 bath • 1327 ft²
1 bedroom apartment for sale in Broadway, Didcot, Oxfordshire, OX11 — £185,000 • 1 bed • 1 bath • 458 ft²
2 bedroom apartment for sale in Broadway, Didcot, Oxfordshire, OX11 — £215,000 • 2 bed • 1 bath • 812 ft²
2 bedroom apartment for sale in Broadway, Didcot, Oxfordshire, OX11 — £250,000 • 2 bed • 1 bath • 611 ft²


















































































