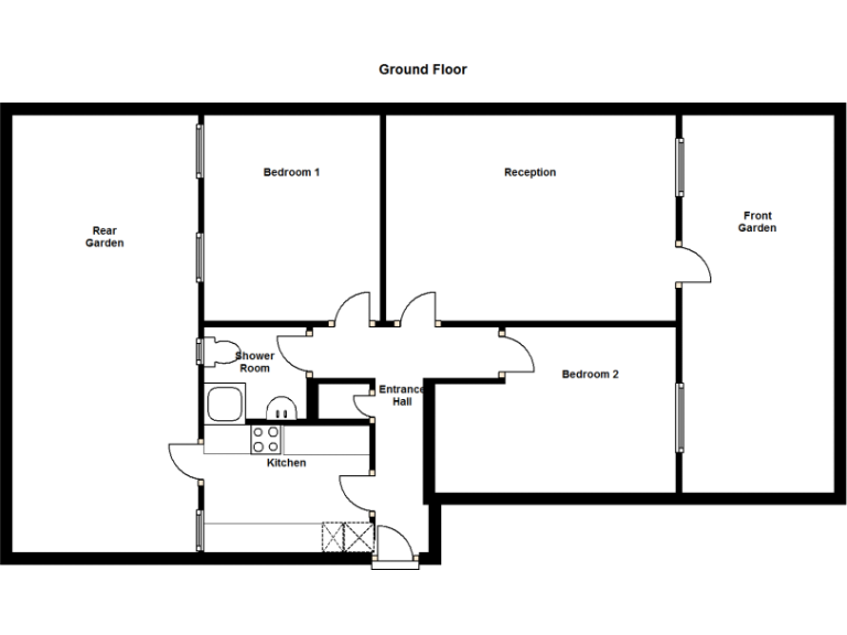
**Standout Features:**
- Two double bedrooms and a modern shower room
- Bright reception room and a fitted kitchen
- Private rear garden for outdoor living
- Chain-free sale for quick and easy transition
- Excellent transport links to Elephant & Castle and Kennington stations
- Close proximity to Burgess Park and local amenities
**Potential Concerns:**
- Small overall size (485 sq ft)
- High local crime rate
- Property needs potential maintenance and renovation
This charming ground floor flat in Ightham House is perfect for first-time buyers and investors alike, offering a blend of comfort and convenience in bustling South London. Spanning a total of 485 sq ft, the apartment features two good-sized double bedrooms, a bright reception area, and a well-appointed fitted kitchen that leads to a private rear garden, making it an ideal setting for relaxation or entertaining. Chain-free and boasting excellent transport links to central London, this property also provides easy access to vibrant local shops, cafés, and the lush greenery of Burgess Park.
While the flat does have a compact layout and is situated in an area with a higher crime rate, this may be mitigated by the community's unique urban charm and growth potential. With future renovation possibilities to maximize space and comfort, this is an excellent opportunity to invest in a welcoming residence in a thriving neighborhood. Don't miss out—properties like this won’t be available for long!











































