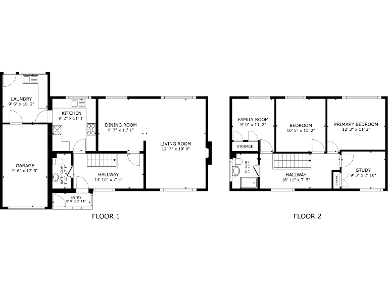
**Standout Features:**
- Stunning views of the Simonside Hills from lounge and bedrooms
- Spacious interior with potential for modernization
- Four proper bedrooms and an upstairs shower room
- Generous corner plot with both front and back gardens
- Chain-free sale for quick move-in
- Built-in single garage with conversion potential (subject to permission)
- Double glazing, cavity wall insulation, and oil central heating already in place
**Concerns:**
- Original 1970s kitchen in need of renovation
- Overall property requires cosmetic updates
This charming 1970s detached family home presents an incredible opportunity to create your dream space while enjoying breathtaking views of the Simonside Hills. The property features a light-filled living room and four generous bedrooms, perfect for families seeking space and comfort. With a traditional kitchen waiting for customization, potential owners can either open it up for a more modern layout or preserve its retro charm.
Situated on a sizeable corner plot, the front and back gardens are framed by mature hedging for delightful privacy, making it an ideal play area for kids or a peaceful retreat for adults. The home includes a built-in garage with scope for conversion, adding even more versatility. Current features like double glazing and cavity wall insulation ensure a solid foundation, while the chain-free status allows for a quick transition into your new abode.
Located in the tranquil village of Longframlington, residents can enjoy a close-knit community with amenities like friendly pubs, a bakery, and easy access to local attractions and the National Park. This property promises a lovely mix of comfort and potential—don’t miss your chance to redefine this house into your forever home!
4 bedroom detached house for sale in Rimside Gardens, Longframlington, Morpeth, NE65 — £450,000 • 4 bed • 3 bath • 1569 ft²
5 bedroom detached house for sale in High Town, Morpeth, NE65 — £490,000 • 5 bed • 3 bath • 1993 ft²
4 bedroom bungalow for sale in Rothbury Road, Morpeth, NE65 — £450,000 • 4 bed • 1 bath • 1345 ft²
3 bedroom cottage for sale in Eaver Cottage, Rothbury Road, Longframlington, Morpeth, NE65 — £230,000 • 3 bed • 1 bath • 1098 ft²
3 bedroom detached bungalow for sale in Cairn View, Longframlington, Morpeth, Northumberland, NE65 — £425,000 • 3 bed • 2 bath • 1660 ft²
3 bedroom semi-detached house for sale in Church Street, Longframlington, Morpeth, Northumberland, NE65 — £185,000 • 3 bed • 1 bath • 1011 ft²


















































































