DA9 9TE - 2 bed first floor two bed in Redwing Crescent, DA9 9TE

View on Property Piper

2 bedroom flat for sale in Redwing Crescent, Waterstone Way, Greenhithe, Kent, DA9

Summary - 8 REDWING CRESCENT GREENHITHE DA9 9TE

2 bed 2 bath Flat

Chain-free, long-lease two-bedroom flat with balcony and secure parking, ideal for first-time buyers..
Chain-free first-floor two-bedroom apartment with private balcony
Long lease: c.230+ years remaining — strong tenure security
Allocated secure undercover parking included
Two bathrooms; practical layout for families or sharers
Service charge c. £2,000pa and ground rent £350pa — budget accordingly
Close to Greenhithe station, Bluewater and A2/M25 commuter routes
Built 2006; modern construction with double glazing and mains gas heating
No flood risk; very low local crime rates
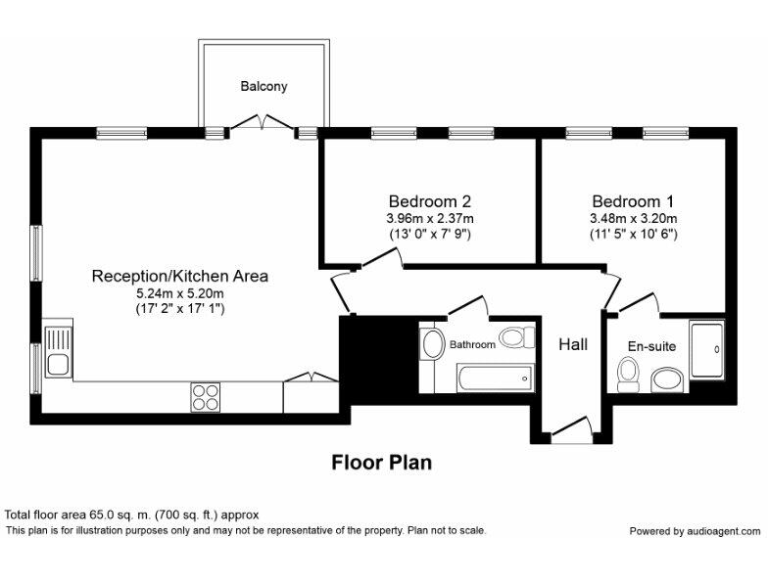
Bright, practical and move-in ready, this first-floor two-bedroom apartment is aimed at first-time buyers and buy-to-let investors seeking low-maintenance suburban living with good transport links. The layout delivers two double bedrooms, two bathrooms and an open-plan living/kitchen that extends to a private balcony — useful extra outdoor space for a flat. Secure undercover allocated parking adds convenience and security in a modern development.

The property sits in a well-kept complex built in the 2000s, with communal gardens and a pleasant residential outlook. Greenhithe station is within easy reach for commuters, and nearby Bluewater shopping, schools and A2/M25 connections widen the appeal for families and professionals. Long leasehold security (over 230 years) and a chain-free sale simplify purchase or letting.

Costs to note: the property has an annual service charge of around £2,000 and ground rent of £350 a year. These are typical for managed developments but important for budgeting, particularly for first-time buyers and investors calculating yields. Council tax is moderate and there is no notable flood risk; crime levels are very low.

Overall this apartment suits a buyer who wants a contemporary, low-upkeep home with strong transport links and secure parking. It offers sensible everyday living and straightforward resale or letting potential, though purchasers should factor the ongoing service charge and ground rent into affordability calculations.

Property Details

Brochure Descriptions

Image Descriptions

Floorplan Description

Rooms

Textual Property Features

Target Audience

AI Tags

Detected Visual Features

EPC Details

Nearby Schools

Nearest Bars And Restaurants

,,,,}

Nearest General Shops

,,}

Nearest Grocery shops

,,}

Nearest Supermarkets

,,}

Nearest Religious buildings

,,}

Nearest Medical buildings

,,,}

Nearest Airports

,,}

Nearest Leisure Facilities

,,,,}

Nearest Tourist attractions

,,}

Nearest Train stations

,,,,}

Nearest Bus stations and stops

,,,,}

Nearest Hotels

,,}

Tags

Local Market Stats

AirBnB Data

Similar Properties

Meta

High Res Images

Compatible Images

Low res Images

Thumbnails

Raw Images

High Res Floorplan Images

Compatible Floorplan Images

Low res Floorplan Images

FloorplanImages Thumbnail

Raw Floorplan Images