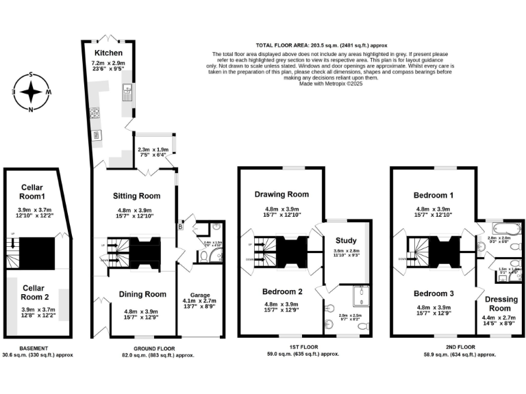
Grade II listed Georgian townhouse with abundant period features
A distinguished four-storey Georgian townhouse offering generous, flexible living across approximately 2,481 sq ft. The house retains original period features and well-proportioned reception rooms, including a drawing room and a vaulted kitchen/breakfast room with exposed beams — ideal for family life and entertaining. The south-facing courtyard garden brings light to the rear and provides a low-maintenance outdoor space close to the seafront.
Practical space includes two substantial cellar rooms, an integral garage and a ground-floor utility and shower room. The house is arranged with multiple double bedrooms and three bathrooms, giving scope for family bedrooms, a home office and guest accommodation. Its central location places independent shops, restaurants, the beach and the station within easy walking distance.
Important considerations: the property is Grade II listed, which will restrict alterations and may complicate maintenance or modernisation. Broadband speeds are reported as slow, and local crime statistics are very high; these are factual constraints for everyday living and should be checked. The sale is chain free, allowing a potentially quicker purchase process.
This home will suit buyers seeking a spacious, character-filled coastal residence who understand the responsibilities of owning a listed property and are prepared to manage slower digital connectivity and the security picture in the area.
4 bedroom terraced house for sale in Coppin Street, Deal, Kent, CT14 — £600,000 • 4 bed • 1 bath • 1703 ft²
4 bedroom detached house for sale in Beach Street, Deal, Kent, CT14 — £950,000 • 4 bed • 2 bath • 474 ft²
3 bedroom end of terrace house for sale in Beach Street, Deal, CT14 — £475,000 • 3 bed • 1 bath • 1344 ft²
4 bedroom end of terrace house for sale in Middle Street, Deal, Kent, CT14 — £650,000 • 4 bed • 2 bath • 1560 ft²
4 bedroom terraced house for sale in Beach Street, Deal, Kent, CT14 — £975,000 • 4 bed • 1 bath • 1887 ft²
3 bedroom terraced house for sale in Dolphin Street II, Deal, Kent, CT14 — £550,000 • 3 bed • 2 bath • 1154 ft²


































































































