RG1 7RP - 1 bedroom flat for sale in Reading Town Centre, Berkshire,…

View on Property Piper

1 bedroom flat for sale in Reading Town Centre, Berkshire, RG1

Summary - Reading Town Centre, Berkshire, RG1 RG1 7RP

1 bed 1 bath Flat

**Standout Features:**
- 999-year leasehold, starting from 1982.
- Characterful apartment with high ceilings and original features.
- One bedroom with an independent study room, ideal for remote work.
- Open living/kitchen space with a bay window.
- Allocated off-street and visitor parking.
- Excellent mobile and fast broadband connectivity.
- Located just 0.3 miles from Reading Town Centre.

**Potential Concerns:**
- Crime rate is considered high in the area.
- Property has solid brick walls with no defined glazing or insulation.
- Electric heating system may require upgrades for optimal comfort.

Discover urban living at its finest in this charming one-bedroom leasehold apartment, perfectly located near the vibrant Reading Town Centre. With stunning high ceilings and original Victorian features, this home boasts a spacious open living/kitchen area flooded with natural light from the bay window. The independent study room provides a peaceful work-from-home environment, making it ideal for professionals or first-time buyers seeking a touch of character and convenience.

Though the property falls within an area with elevated crime rates, it offers a sense of community paired with urban amenities. Residents will appreciate the allocated parking and proximity to fast broadband services. With outstanding local schools and essential amenities just a stone's throw away, this apartment is a fantastic investment opportunity. Don’t miss out on the chance to make it yours—experience comfort, convenience, and the potential for future renovations in this appealing urban retreat.

Property Details

Image Descriptions

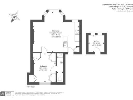
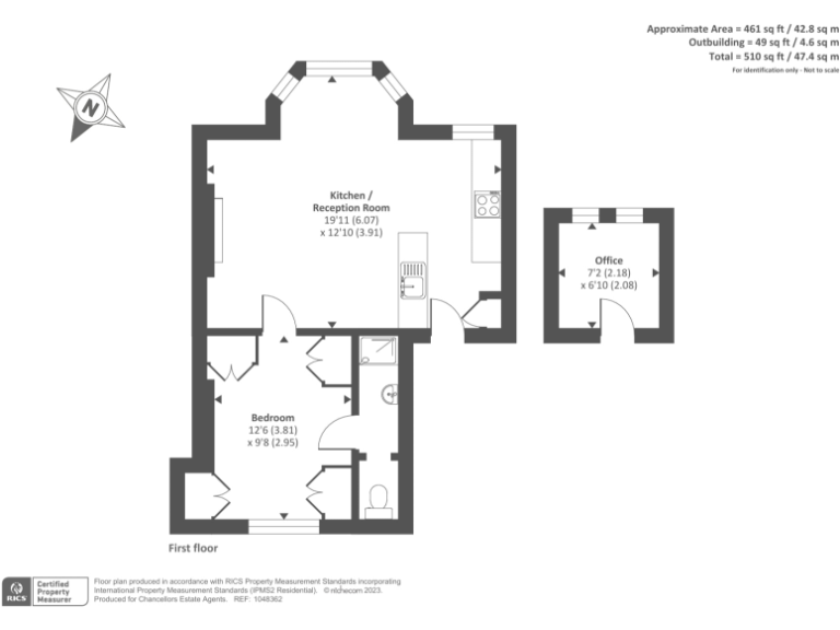
Floorplan Description

Rooms

Textual Property Features

Detected Visual Features

EPC Details

Nearby Schools

Nearest Bars And Restaurants

,,,,}

Nearest General Shops

,,}

Nearest Grocery shops

,,}

Nearest Supermarkets

,,}

Nearest Religious buildings

,,}

Nearest Medical buildings

,,,}

Nearest Airports

}

Nearest Leisure Facilities

,,,,}

Nearest Tourist attractions

,,}

Nearest Train stations

,,,,}

Nearest Bus stations and stops

,,,,}

Nearest Hotels

,,}

Tags

Local Market Stats

AirBnB Data

Similar Properties

Meta

High Res Images

Compatible Images

Low res Images

Thumbnails

Raw Images

High Res Floorplan Images

Compatible Floorplan Images

Low res Floorplan Images

FloorplanImages Thumbnail

Raw Floorplan Images