**Standout Features:**
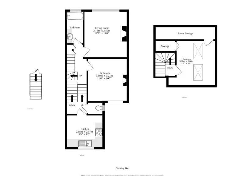
- Stunning split-level design with double vaulted ceiling
- Modern fitted kitchen with stylish dark cabinetry and ample storage
- Spacious living area featuring an exposed brick fireplace and log-burning stove
- Two generous double bedrooms, including a loft conversion with skylights
- Highly sought-after location with far-reaching views over Brighton
- Share of freehold and chain-free sale with low service charge and council tax
**Potential Downsides:**
- Average-sized apartment (700 sq ft), which may be limiting for larger families
- Some maintenance potential depending on personal preference after renovations
**Summary:**
Discover this exquisite two-bedroom split-level apartment at 86 Ditchling Rise, perfectly positioned near the vibrant Preston Circus. The recently renovated space features an airy kitchen with a magnificent double vaulted ceiling, sleek dark cabinetry, and space for a breakfast area, making it a perfect hub for casual dining and entertaining. The bright and welcoming living room showcases a stunning exposed brick fireplace with a cozy log-burning stove, ideal for relaxing evenings.
Upstairs, the loft conversion adds exceptional value, creating a versatile second double bedroom flooded with light from skylights and additional eaves storage. Located in an affluent area known for its excellent schools and rich community life—including local markets, parks, and independent cinemas—this apartment is an excellent choice for families, professionals, or investors looking for a vibrant community. With fast broadband and excellent transport links, this property promises both comfort and convenience in the heart of Brighton. Don't miss out on this opportunity to make it your own!
1 bedroom apartment for sale in Ditchling Road, Brighton, BN1 — £285,000 • 1 bed • 1 bath • 678 ft²
2 bedroom flat for sale in Ditchling Rise, Brighton, BN1 — £325,000 • 2 bed • 1 bath • 574 ft²
2 bedroom flat for sale in Ditchling Rise, Brighton, BN1 — £349,950 • 2 bed • 1 bath • 743 ft²
1 bedroom apartment for sale in Ditchling Rise, Brighton, BN1 — £250,000 • 1 bed • 1 bath • 463 ft²
2 bedroom flat for sale in Ditchling Rise, Brighton, BN1 — £325,000 • 2 bed • 1 bath • 753 ft²
1 bedroom apartment for sale in Ditchling Rise, Brighton, BN1 — £250,000 • 1 bed • 1 bath • 466 ft²














































































