**Standout Features:**
- **Type:** Two Freehold semi-detached houses
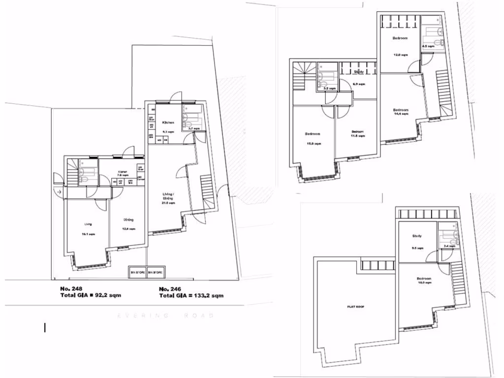
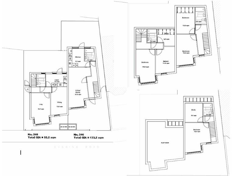
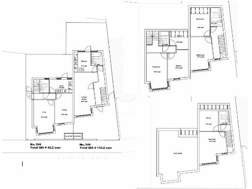
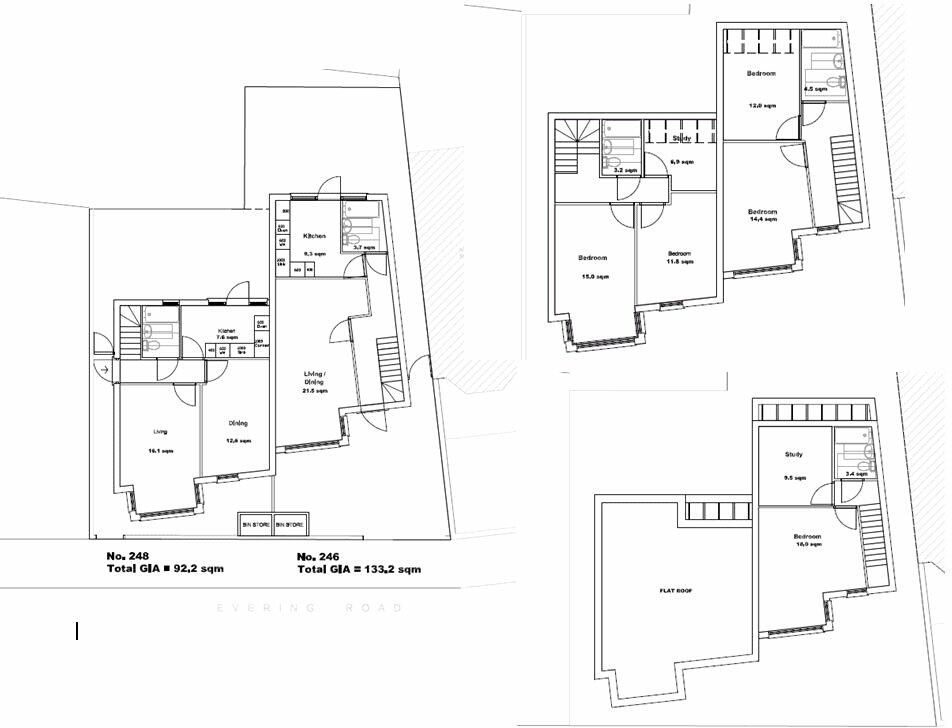
- **Size:** Total of 4 bedrooms and 3 bathrooms in one house; 3 bedrooms and 2 bathrooms in the second
- **Income Potential:** Currently let, generating £76,400 annually (vacant possession available from July 2026)
- **Outdoor Space:** Private gardens for both properties
- **Location:** Located on a tree-lined street near Clapton & Rectory Road Overground Stations with excellent transport links
- **Renovation Opportunity:** Both homes require refurbishment with additional potential to extend (subject to consent)
**Summary:**
Discover a unique investment opportunity in the heart of E5 with this pair of Freehold semi-detached houses, ideal for savvy buyers looking for renovation potential and a lucrative rental income. The first house boasts four bedrooms and three bathrooms, while the second features three bedrooms and two bathrooms, each accompanied by a private garden—a rare find in an urban setting. Both homes are currently generating a solid rental income, ensuring immediate cash flow, with the prospect of vacant possession in just a few years.
Nestled on a picturesque street, these homes offer proximity to Clapton and Rectory Road Overground Stations for speedy access to Liverpool Street, alongside a vibrant mix of shops, restaurants, and green spaces like Hackney Downs. While both properties are in need of refurbishment, their solid brick construction from the early 20th century provides a robust base for your vision. With low crime rates and excellent mobile and broadband connectivity, this location is perfect for families or professionals seeking a cosmopolitan lifestyle. Don't miss this opportunity to create your dream homes in a sought-after area—invest in your future today!
Residential development for sale in Evering Road, Clapton, E5 — £850,000 • 4 bed • 3 bath • 1434 ft²
Residential development for sale in Evering Road, Clapton, E5 — £750,000 • 3 bed • 2 bath • 906 ft²
6 bedroom end of terrace house for sale in Chippendale Street, E5 — £1,250,000 • 6 bed • 3 bath • 1783 ft²
5 bedroom end of terrace house for sale in Blurton Road, Hackney, London, E5 — £1,100,000 • 5 bed • 2 bath • 1553 ft²
5 bedroom terraced house for sale in Brenthouse Road, Central Hackney, E9 — £1,200,000 • 5 bed • 2 bath • 1597 ft²
3 bedroom house for sale in Lyneham Walk, London, E5 — £550,000 • 3 bed • 1 bath • 1113 ft²














































