Quiet street close to top primary schools and excellent transport links.
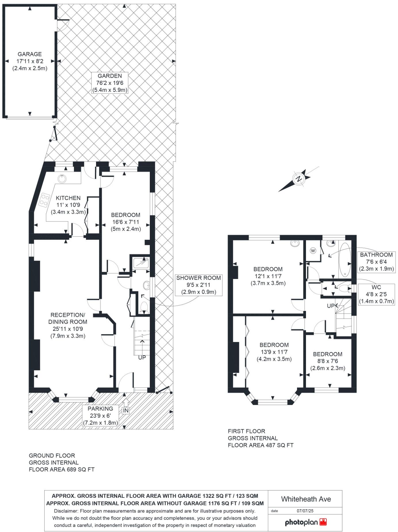
Four bedrooms across two floors, flexible family layout
Double reception room with large front bay window
Contemporary fitted kitchen, integrated appliances
Large rear garden with sizeable patio area
Off-street parking for multiple cars plus garage access
Described as two bathrooms; official record lists one — verify layout
EPC D and Council Tax Band F (expensive)
Potential to extend/loft subject to planning permission
Set on a quiet North Ruislip street, this 1940s detached home offers flexible family living across approximately 1,300 sq ft. The well-maintained interior, neutral decor and a contemporary kitchen create an easy move-in opportunity for families wanting space and local convenience.
The double reception room has a large front bay window and plenty of natural light, while four bedrooms upstairs give comfortable sleeping space. The property is described as having two bathrooms with a separate WC on the first floor; official records list one bathroom, so buyers should verify the exact current layout.
Outside, there is off-street parking for several cars, a shared driveway to a garage and a large, well-kept rear garden with a patio — a strong asset for families and summer entertaining. There is potential to extend (subject to planning permission), including loft conversion as seen on neighbouring properties.
Practical details: gas central heating and double glazing throughout, EPC rating D and council tax in Band F (noted as expensive). The house is within walking distance of highly regarded primary schools and near West Ruislip and Ruislip stations, offering fast commute options and good broadband speeds.
4 bedroom semi-detached house for sale in Bury Street, Ruislip, HA4 — £825,000 • 4 bed • 1 bath • 1301 ft²
3 bedroom detached house for sale in St. Martins Approach, Ruislip, HA4 — £950,000 • 3 bed • 1 bath • 1242 ft²
4 bedroom semi-detached house for sale in Whiteheath Avenue, Ruislip, HA4 — £800,000 • 4 bed • 2 bath • 1567 ft²
4 bedroom detached house for sale in Sharps Lane, Ruislip, HA4 — £950,000 • 4 bed • 2 bath • 1356 ft²
4 bedroom detached house for sale in Bury Avenue, Ruislip, HA4 — £1,140,000 • 4 bed • 2 bath • 1738 ft²
4 bedroom detached house for sale in The Fairway, Ruislip, HA4 — £750,000 • 4 bed • 2 bath • 1022 ft²










































































