**Standout Features:**
- Expansive 5-bedroom detached home in Woodlands Meadow
- NHBC award-winning development, recognized for quality construction
- Three-storey layout provides ample family accommodation
- Modern Paula Rosa kitchen with integrated appliances and breakfast island
- South-facing garden with patio area; perfect for outdoor entertaining
- Double garage with spacious driveway parking for up to 4 vehicles
- Proximity to well-rated schools and local amenities
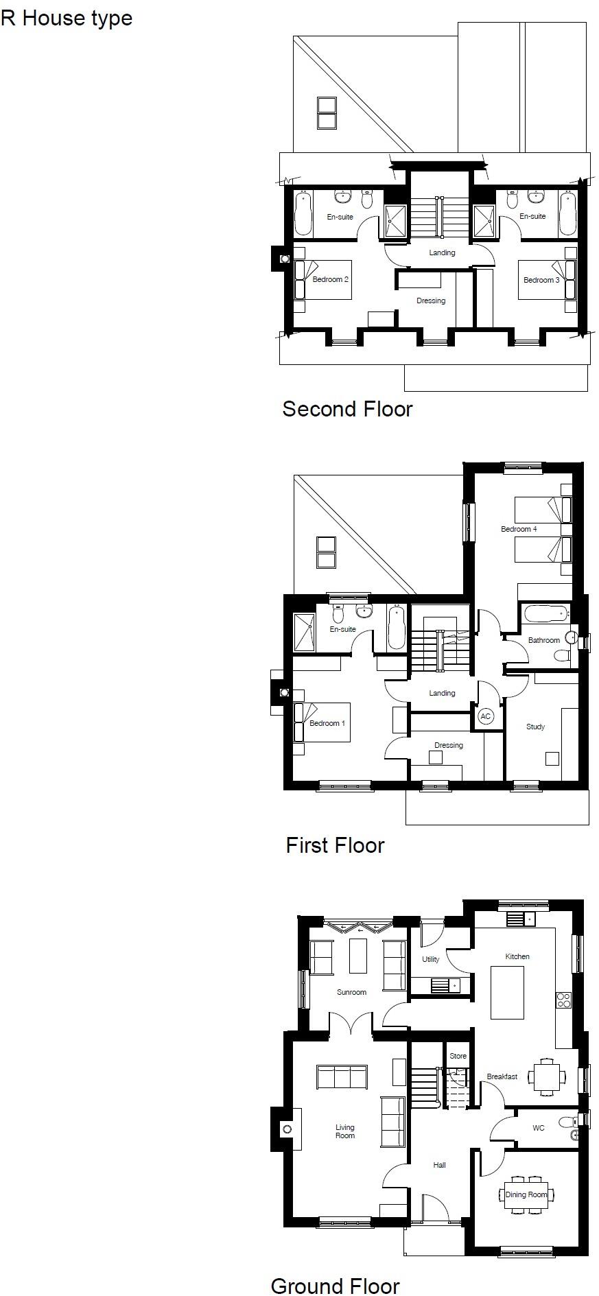
Located in the highly sought-after Woodlands Meadow, this impressive three-storey detached house is a true sanctuary for families seeking ample space and comfort. With five generous bedrooms, each designed with elegance, and four modern bathrooms, including luxurious ensuites, this home offers both privacy and functionality. The heart of the home is a stunning Paula Rosa kitchen, seamlessly flowing into a vaulted family room that opens up to a beautiful south-facing garden, making it ideal for summer gatherings.
Despite its luxurious charm, the average crime rate in the local area might raise concerns for some buyers. However, with a range of well-rated schools within walking distance, families will appreciate the ease of managing school runs alongside nearby recreational facilities. This distinctive property not only represents a comfortable lifestyle but also offers future potential for personalized renovations. A £15,000 discount is currently available on the £899,950 asking price, making this an urgent opportunity to secure a family home in a prestigious development known for its quality and craftsmanship. Don't miss your chance to experience luxury living at its best in this award-winning neighborhood!
5 bedroom detached house for sale in Woodlands Meadow, New Homes, CM6 — £865,000 • 5 bed • 4 bath • 1467 ft²
5 bedroom detached house for sale in Woodlands Meadow, New Homes, CM6 — £950,000 • 5 bed • 5 bath • 1863 ft²
4 bedroom detached house for sale in Woodlands Meadow, New Homes, CM6 — £785,000 • 4 bed • 3 bath • 1507 ft²
4 bedroom detached house for sale in Woodlands Meadow, New Homes, CM6 — £699,950 • 4 bed • 3 bath • 1332 ft²
6 bedroom detached house for sale in Woodlands Meadow, New Homes, CM6 — £1,250,000 • 6 bed • 4 bath • 2101 ft²
6 bedroom detached house for sale in Woodlands Meadow, New Homes, CM6 — £875,000 • 6 bed • 4 bath • 1535 ft²














































































































































