**Standout Features:**
- Extended four-bedroom detached home
- Generous L-shaped kitchen diner with integrated appliances
- Two ground floor bedrooms, ideal for multi-generational living
- Integral garage with driveway parking
- Large private rear garden with patio area
- Excellent location in affluent community near top-rated schools
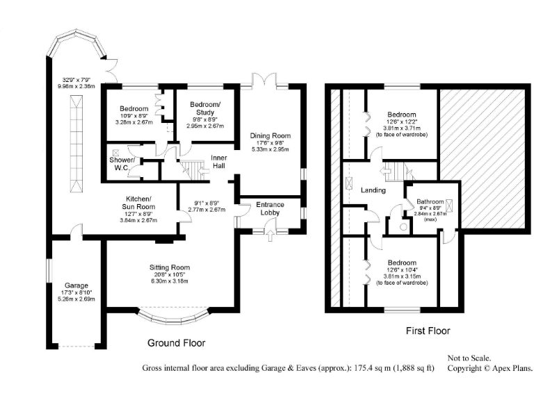
This beautifully extended four-bedroom detached family home combines modern living with traditional charm, boasting over 1,888 square feet of well-presented accommodation. The standout L-shaped kitchen and dining space is the heart of the home, flooded with natural light thanks to its skylight and curved double-glazed windows. The contemporary kitchen is equipped with high-spec integrated appliances, catering to the culinary enthusiast.
With two bedrooms and a shower room conveniently located on the ground floor, this property offers versatility for families or those needing guest spaces. The bright living room features a bay window and a stylish fireplace, enhancing its cozy atmosphere. Upstairs, two spacious bedrooms provide ample storage and serene views.
Set in a desirable residential area, this home is surrounded by well-maintained gardens, a generous rear lawn, and a stone patio—perfect for entertaining or relaxing on warm days. The integral garage offers added convenience with electric doors and additional storage options. While the overall condition is excellent, the property is ready for personal touches to fully personalize the space.
Located in a low-crime, affluent community, it boasts access to highly-rated schools, making it ideal for families. A home of this caliber in such a prime area won’t last long—don’t miss your chance to secure your dream family haven!
3 bedroom detached house for sale in Pentagon Way, Leeds, LS22 — £550,000 • 3 bed • 2 bath • 1300 ft²
4 bedroom detached house for sale in Ure Grove, Wetherby, West Yorkshire, LS22 — £450,000 • 4 bed • 1 bath • 1371 ft²
4 bedroom detached house for sale in Wetherby, Glebe Field Drive, LS22 — £469,000 • 4 bed • 1 bath • 1152 ft²
5 bedroom detached house for sale in Wharfe Grove, Wetherby, LS22 — £1,350,000 • 5 bed • 3 bath • 3029 ft²
4 bedroom detached house for sale in Swale Rise, Wetherby, West Yorkshire, LS22 — £450,000 • 4 bed • 1 bath • 1438 ft²
4 bedroom detached house for sale in Pentagon Way, Wetherby, LS22 — £650,000 • 4 bed • 2 bath • 1773 ft²






























































































































