Huge rear plot and garage — ideal for families or renovation buyers.
Three double bedrooms across first floor
Huge rear garden — significant extension potential
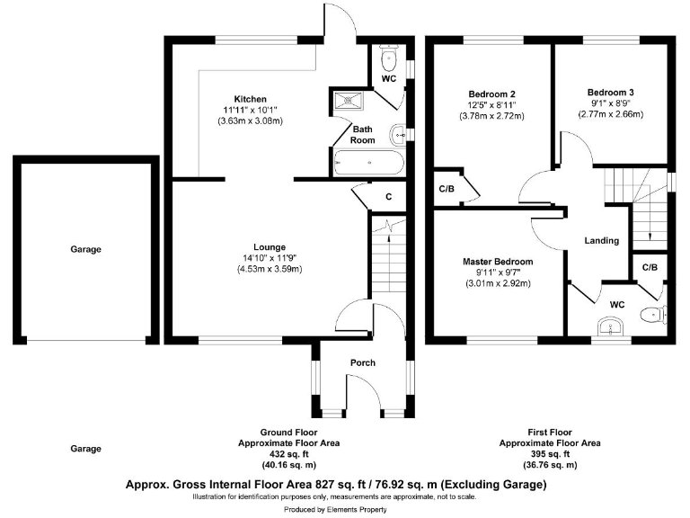
Open-plan lounge and kitchen on ground floor
Downstairs shower room; upstairs cloakroom/WC
Driveway plus single garage for off-road parking
Requires modernisation throughout; dated living room fittings
Chain-free sale; freehold tenure simplifies purchase
Approx 827 sq ft — average internal size
Set on a large plot in a well-connected Trowbridge neighbourhood, this three-bedroom semi-detached house offers clear scope for improvement and strong outdoor potential. The ground floor has an open-plan living area linking lounge and kitchen, plus a practical downstairs shower room — convenient for busy family life or rental use. Upstairs provides three double bedrooms and an additional WC, giving flexible sleeping and work-from-home options.
The standout feature is the huge rear garden and generous plot, which create opportunities for landscaping, extension (subject to planning) or separate outdoor living zones. Parking is straightforward with a driveway and single garage. The property is freehold and offered chain-free, which can speed up a purchase for movers or investors.
The house is a mid-20th century build that requires modernisation throughout: fixtures are dated and the living room shows mid-century finishes and a wall-mounted heater. Buyers should factor refurbishment costs into their plans; the overall size (approx. 827 sq ft) is average for the type. Broadband and mobile signal are strong and commuting is easy via nearby road links and Trowbridge station.
This home suits families wanting outdoor space, first-time buyers willing to renovate, or investors targeting rental demand in an affluent suburb. While schools nearby are a mix of ratings, local amenities, parks and leisure facilities are within easy reach, making this a practical and flexible long-term prospect.
3 bedroom end of terrace house for sale in Weavers Drive, Trowbridge, BA14 — £180,000 • 3 bed • 1 bath • 750 ft²
3 bedroom terraced house for sale in Lambrok Close, Trowbridge, BA14 — £222,500 • 3 bed • 1 bath • 1075 ft²
3 bedroom terraced house for sale in Boundary Walk, Trowbridge, BA14 — £250,000 • 3 bed • 1 bath • 871 ft²
3 bedroom semi-detached house for sale in Burnett Road, Trowbridge, BA14 — £270,000 • 3 bed • 1 bath • 1060 ft²
3 bedroom detached house for sale in St. Thomas Road, Trowbridge, BA14 — £400,000 • 3 bed • 1 bath • 1304 ft²
3 bedroom semi-detached house for sale in Kensington Close, Trowbridge, BA14 — £225,000 • 3 bed • 1 bath • 843 ft²


































































































