**Standout Features:**
- Characterful two-bedroom cottage, built circa 1820
- Modern accommodations with historic charm
- Low-maintenance garden ideal for entertaining
- Garage and car port for off-street parking
- Excellent local amenities and transport links
- Chain-free with affordable council tax
- Countryside views and rural setting
- Good-rated local schools
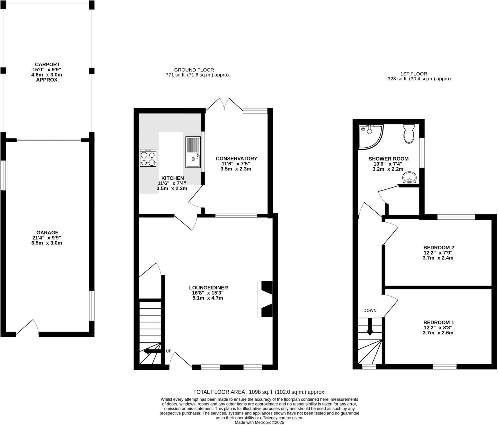
Nestled in the quaint village of Worstead, this charming two-bedroom terraced cottage seamlessly blends historic character with modern living. Retaining beautiful period features like beams and a brick fireplace, the home offers an open-plan lounge-dining area, a well-equipped kitchen, and a light-filled conservatory that leads to a lovely low-maintenance garden perfect for alfresco dining.
Set on a small plot with field views, this home provides a serene countryside setting while remaining close to essential local amenities, including a train station, schools, and a welcoming pub. With the added benefit of a garage and car port, parking will never be a problem. Avoid the hassle of a chain and step into a cozy, character-rich abode with future renovation potential. This property is ideal for first-time buyers and those seeking a comfortable retreat in a blissful rural community. Act quickly—this unique offering won't last long!
3 bedroom detached house for sale in Front Street, Worstead, NR28 — £425,000 • 3 bed • 2 bath • 1777 ft²
1 bedroom cottage for sale in Honing Row, Worstead, NR28 — £200,000 • 1 bed • 1 bath • 584 ft²
2 bedroom terraced house for sale in Church Road, Felmingham, North Walsham, NR28 — £230,000 • 2 bed • 1 bath • 646 ft²
2 bedroom semi-detached house for sale in Stores Cottages, High Street, Ludham, Great Yarmouth, NR29 — £270,000 • 2 bed • 1 bath • 732 ft²
2 bedroom character property for sale in Grove Corner, Roughton, Norwich, NR11 — £275,000 • 2 bed • 2 bath • 453 ft²
3 bedroom semi-detached house for sale in Woodview, Worstead, NR28 — £290,000 • 3 bed • 1 bath • 937 ft²


















































































































