Spacious three-bed detached on a large plot with huge renovation potential and no onward chain.
Detached three-bedroom home with en-suite to bedroom one
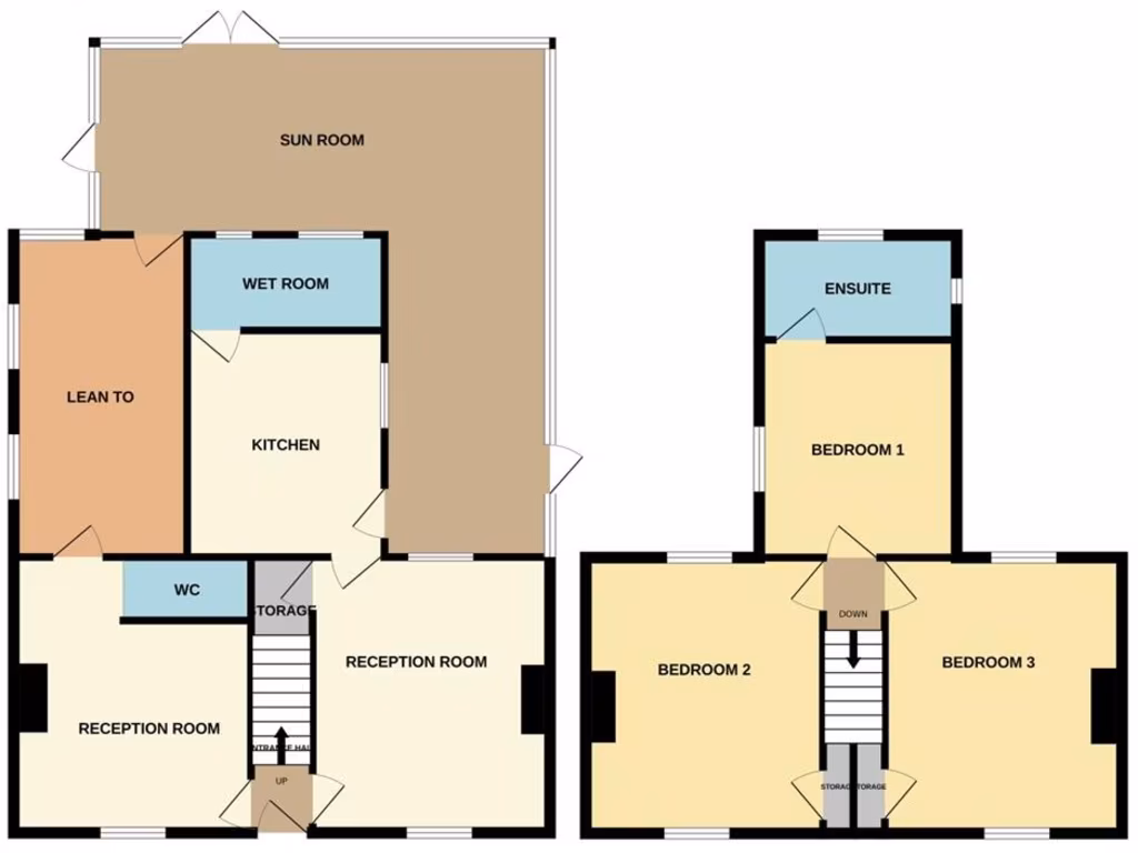
A generous three-bedroom detached home on Jubilee Street offering substantial internal space and a very large rear garden. The house has three reception rooms, a large sun room and an en-suite to the main bedroom — well suited to a growing family wanting room to spread out close to Peterborough city centre. Broadband and mobile signal are good and the property is freehold with no onward chain.
The plot is the main asset: an extensive, mature rear garden with scope for landscaping, extension (subject to consents) or outbuildings. Internally the layout is traditional and practical, with two ground-floor WCs, a wet room/utility and flexible reception space that could be reconfigured to suit modern family life.
Buyers should be clear this is an older property that will need updating. Constructed before 1900 with solid brick walls (assumed no wall insulation), the house currently holds an EPC rating of D. The garden is overgrown and will require landscaping work. The wider area is relatively deprived and local crime is high, which may affect some buyers’ priorities.
For families seeking space and long-term potential, this detached home represents value: a large plot, flexible accommodation and a location close to good primary and secondary schools. Investors or renovators will also find clear scope to improve energy performance and add value through targeted refurbishment.
3 bedroom detached house for sale in Padholme Road, Eastfield, Peterborough, PE1 — £260,000 • 3 bed • 1 bath • 990 ft²
3 bedroom apartment for sale in Manor Avenue, Peterborough, Cambridgeshire, PE2 — £200,000 • 3 bed • 1 bath • 882 ft²
3 bedroom detached house for sale in Fletton Avenue, Peterborough, PE2 8AU, PE2 — £280,000 • 3 bed • 1 bath • 1238 ft²
3 bedroom end of terrace house for sale in Padholme Road, Peterborough, PE1 — £170,000 • 3 bed • 2 bath • 926 ft²
3 bedroom semi-detached house for sale in St. Pauls Road, Peterborough, Cambridgeshire, PE1 — £220,000 • 3 bed • 1 bath • 684 ft²
3 bedroom detached house for sale in Dogsthorpe Road, Peterborough, PE1 — £310,000 • 3 bed • 1 bath • 1613 ft²






















































































