Flexible layout with private annexe and generous parking for growing families.
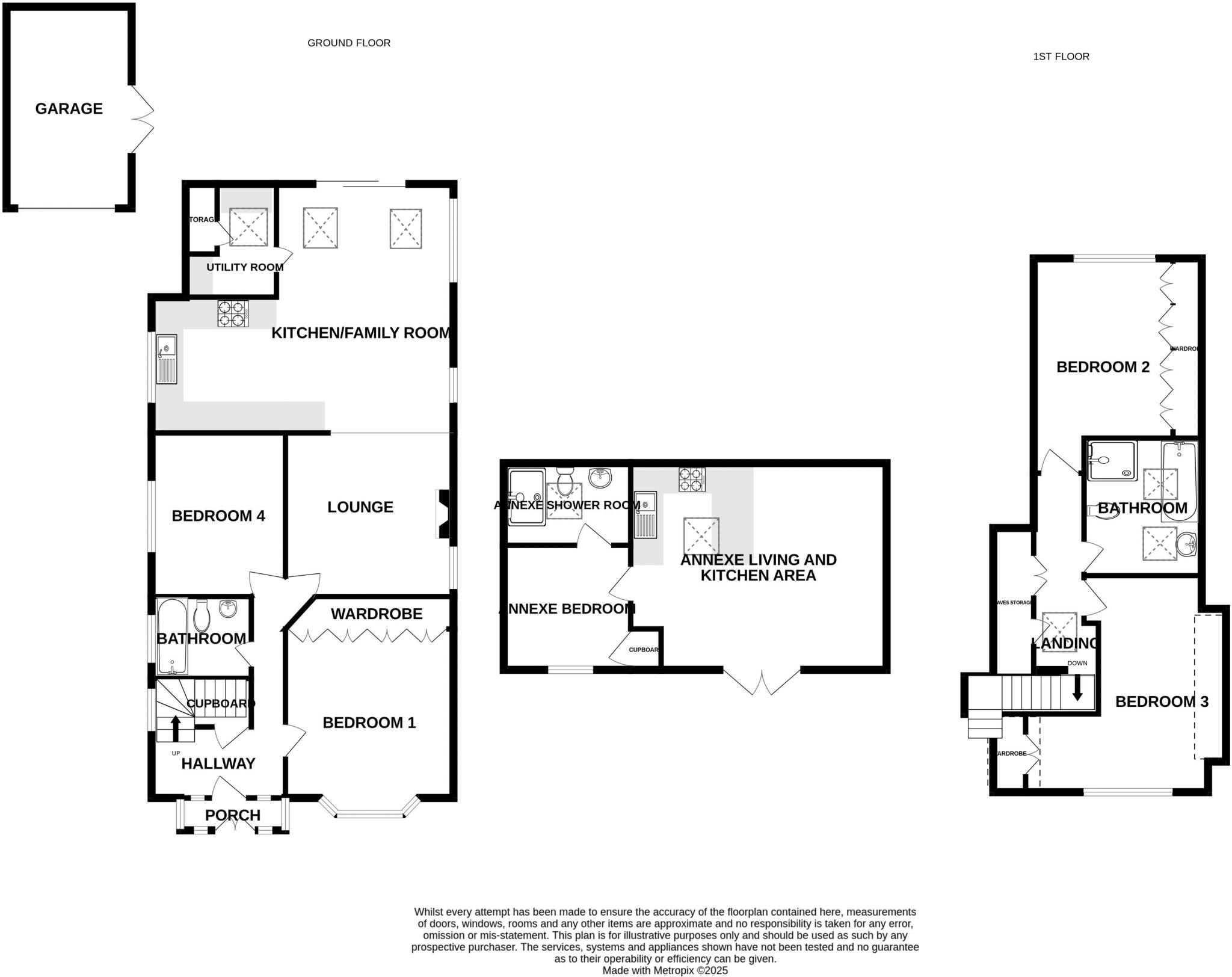
- Four-bedroom main house plus self-contained one-bedroom annexe
- Modern open-plan kitchen/family room and separate living room
- Garage plus driveway parking for multiple vehicles
- Mature, landscaped and private rear garden
- Double glazing and gas central heating throughout
- Two bathrooms: ground floor and first floor
- Rooms small to medium size with standard ceiling heights
- Freehold tenure; moderate council tax band
Set on a large private plot in Widley, this four-bedroom detached chalet-style home includes a self-contained one-bedroom annexe — ideal for multigenerational living or rental income. The property benefits from modern open-plan kitchen/family space, a separate living room, two bathrooms and practical utility space. Double glazing and gas central heating provide immediate comfort.
Outside, a detached garage and wide driveway provide multiple off-street parking spaces. The mature, landscaped rear garden is private and low-maintenance, offering safe outdoor space for children or gardening. The location sits in a comfortable suburban area with very low crime, fast broadband and excellent mobile signal.
Rooms are generally small to medium with standard ceiling heights, so prospective buyers should note the compact scale in parts of the house. The layout offers flexible accommodation but may suit buyers looking to adapt or personalise certain rooms to their needs. Freehold tenure and a moderate council tax band add to long-term value.
Nearby schools are highly regarded and there are local amenities close by, making this a sensible family purchase. Viewing is recommended to appreciate the annexe arrangement, garden and parking provision in person.
5 bedroom detached house for sale in London Road, Widley, PO7 — £650,000 • 5 bed • 3 bath • 1468 ft²
3 bedroom detached house for sale in The Brow, Widley, PO7 — £475,000 • 3 bed • 1 bath • 1055 ft²
5 bedroom bungalow for sale in London Road, WATERLOOVILLE, Hampshire, PO7 — £700,000 • 5 bed • 2 bath • 1980 ft²
3 bedroom semi-detached bungalow for sale in Lone Valley, Widley, PO7 — £395,000 • 3 bed • 2 bath • 1341 ft²
4 bedroom bungalow for sale in Winkfield Row, Waterlooville, Hampshire, PO8 — £450,000 • 4 bed • 1 bath • 1992 ft²
2 bedroom detached bungalow for sale in Privett Road, Widley, PO7 — £350,000 • 2 bed • 1 bath • 840 ft²






























































































