Single-storey living with garage, parking and garden near local amenities.
Chain-free two-bedroom bungalow on a decent plot
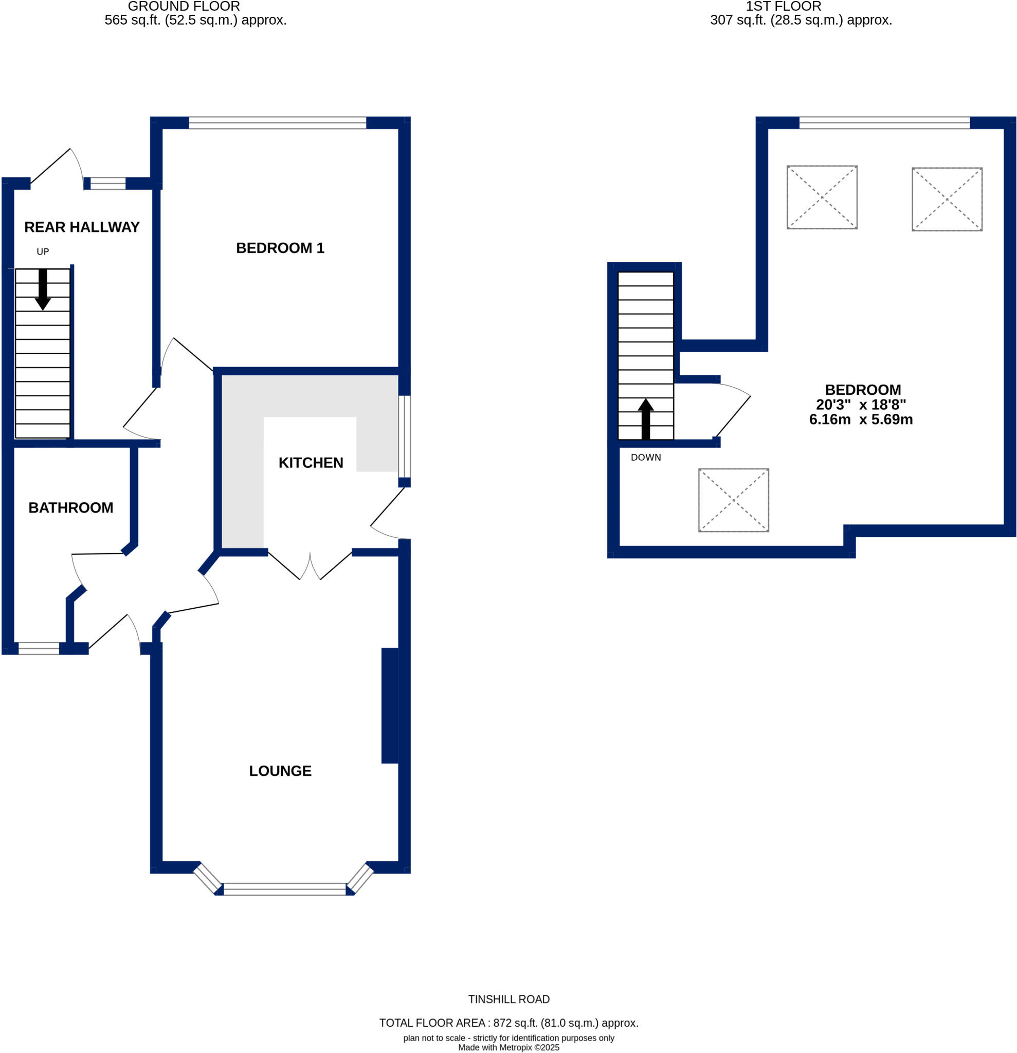
Chain-free semi-detached bungalow in Cookridge offering two bedrooms, a garage and off-street parking — a practical choice for downsizers or buyers seeking a single-storey home. The lounge and modest kitchen provide comfortable, everyday living; double glazing and gas central heating are already in place. The plot is a decent size with a private garden, framing potential for low-maintenance outdoor space or simple landscaping.
The property dates from the mid-20th century and has been lived in; the exterior appears unkempt and will need basic maintenance and cosmetic attention. Internally the kitchen is modern in style but the house overall would benefit from updating in places to match contemporary standards. No flooding risk is recorded, broadband and mobile signals are good, and local schools and transport links are close by.
This is a straightforward, chain-free purchase with practical benefits — garage, parking and a convenient location near amenities and the train station. Buyers seeking a ready-to-move-in, fully modernised home should note the maintenance and decorative work required; investors or those looking to personalise a bungalow will find clear potential here.
2 bedroom detached bungalow for sale in Moseley Wood Gardens, Cookridge, Leeds, LS16 — £220,000 • 2 bed • 1 bath • 583 ft²
2 bedroom bungalow for sale in Tinshill Lane, Leeds, West Yorkshire, LS16 — £230,000 • 2 bed • 1 bath • 637 ft²
2 bedroom bungalow for sale in Wrenbury Avenue, Cookridge, Leeds, LS16 — £260,000 • 2 bed • 1 bath • 833 ft²
2 bedroom semi-detached bungalow for sale in Kirkwood View, Leeds, LS16 — £260,000 • 2 bed • 1 bath • 614 ft²
2 bedroom bungalow for sale in Billingbauk Drive, Leeds, West Yorkshire, LS13 — £300,000 • 2 bed • 1 bath • 707 ft²
2 bedroom detached bungalow for sale in Eaton Hill, Leeds, LS16 — £300,000 • 2 bed • 1 bath • 646 ft²


















































