**Standout Features:**
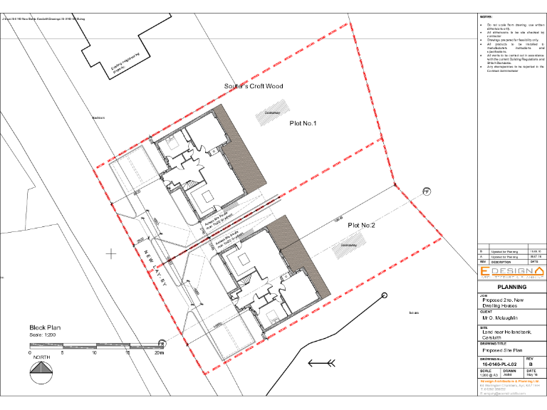
- Two building plots available adjacent to 'Hollandbank'
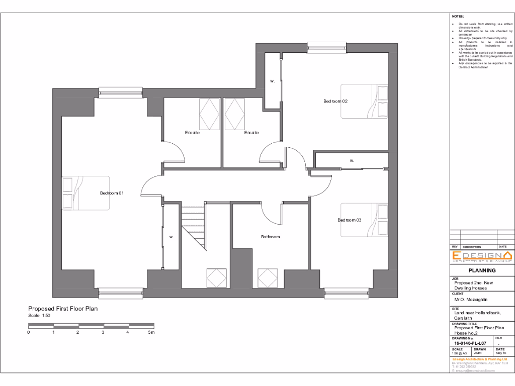
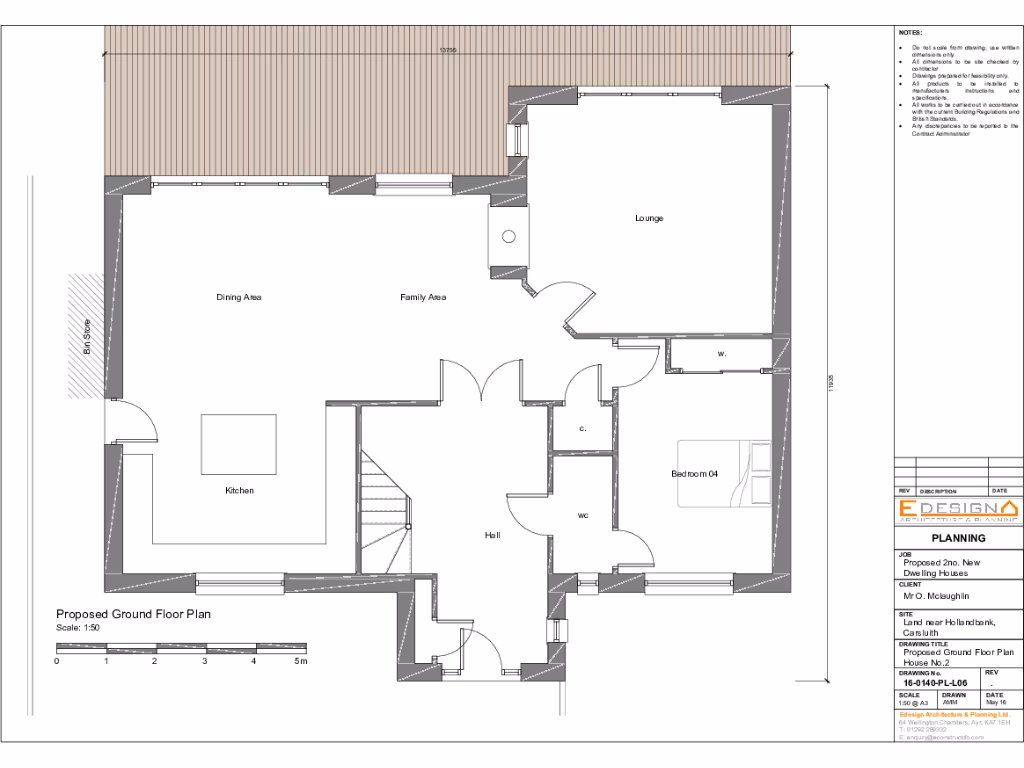
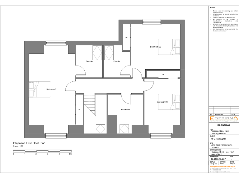
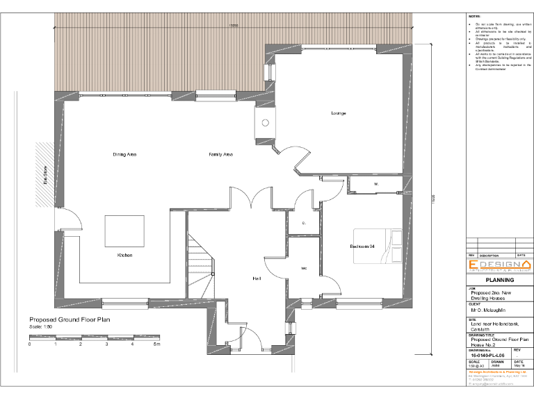
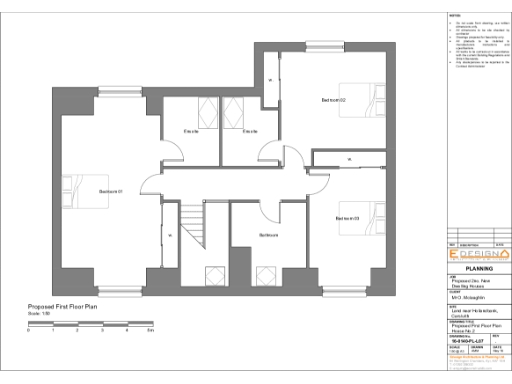
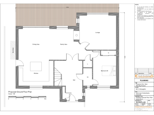
- Planning permission approved for two detached four-bedroom houses
- Scenic location with views across the Cree Estuary
- Total site area of 0.12 ha (0.30 acres)
- Offers starting at £49,950 per plot or £95,000 for the entire site
- Elevated position surrounded by lush greenery
**Summary:**
Located in the charming coastal village of Carsluith, this property presents an exceptional opportunity for developers or investors to build two stunning family homes. With planning permission already secured for two detached four-bedroom houses, each plot allows for spacious ground and first-floor living areas, complete with en-suite bedrooms and contemporary design. The elevated landscape offers breathtaking views of the Cree Estuary, ensuring a tranquil setting for future residents.
Nestled near the conservation village of Creetown, the plots benefit from convenient road access to local amenities, including schools, shops, and transportation links. Whether you are looking to invest or create a dream family home, this site offers not only potential but a picturesque foundation in a desirable rural community. Act quickly as such opportunities in idyllic locations rarely last long!
Plot for sale in Carsluith, DG8 — £49,950 • 1 bed • 1 bath • 768 ft²
Land for sale in Land At Creetown, Creetown, Newton Stewart, Dumfries & Galloway, South West Scotland, DG8 — £200,000 • 1 bed • 1 bath
Land for sale in Land At Carty, Carty, Newton Stewart, DG8 — £195,000 • 1 bed • 1 bath
Land for sale in Land At Twynholm, Twynholm, Kirkcudbrightshire, DG6 — £50,000 • 1 bed • 1 bath
Land for sale in Land at Castlewigg, Whithorn, Newton Stewart, DG8 — £300,000 • 1 bed • 1 bath
Land for sale in Plot At Carrick Shore, Gatehouse of Fleet, Castle Douglas, Dumfries and Galloway, DG7 — £85,000 • 1 bed • 1 bath


















