Bright modern living with private garden and allocated parking.
Three bedrooms including top-floor principal with en suite
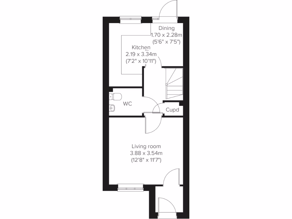
A practical three-storey new-build laid out for family life, this semi-detached Saunton offers a bright open-plan kitchen/dining area with direct garden access and a front-aspect living room. The top-floor principal bedroom benefits from an en suite, while two further bedrooms occupy the middle floor. Built with energy-efficient features and offered freehold, the home is ready to move into.
Storage and day-to-day convenience are strong points: an enclosed porch, downstairs WC and three handy storage cupboards help keep living areas uncluttered. Off-street allocated parking and an enclosed rear garden make this a sensible choice for growing households. Room sizes are generous for the type, with a total internal area claimed at 1,585 sq ft across three floors.
Buyers should note a few practical constraints. Council tax banding will not be available until post-occupation. Broadband speeds are average locally and one nearby primary school is rated 'Requires improvement' by Ofsted. The wider neighbourhood is described as an ageing suburban area, and crime levels are average. These factors are worth considering alongside the property's new-build benefits.
3 bedroom semi-detached house for sale in Regency Grange,
Forest Town, Mansfield,
Nottinghamshire,
NG19 0HS, NG19 — £250,000 • 3 bed • 1 bath • 672 ft²
3 bedroom semi-detached house for sale in Regency Grange,
Forest Town, Mansfield,
Nottinghamshire,
NG19 0HS, NG19 — £235,000 • 3 bed • 1 bath • 672 ft²
3 bedroom semi-detached house for sale in Broomhill Lane,
Mansfield,
Nottinghamshire
NG196AR, NG19 — £220,000 • 3 bed • 1 bath • 547 ft²
3 bedroom semi-detached house for sale in Broomhill Lane,
Mansfield,
Nottinghamshire
NG196AR, NG19 — £225,000 • 3 bed • 1 bath • 547 ft²
3 bedroom semi-detached house for sale in Regency Grange,
Forest Town, Mansfield,
Nottinghamshire,
NG19 0HS, NG19 — £245,000 • 3 bed • 1 bath • 342 ft²
3 bedroom semi-detached house for sale in Regency Grange,
Forest Town, Mansfield,
Nottinghamshire,
NG19 0HS, NG19 — £245,000 • 3 bed • 1 bath • 602 ft²


















































































































































































