**Standout Features:**
- Spacious four-bedroom detached home
- Double garage with electric door
- Two sunny outdoor terraces
- En-suite primary bedroom
- Quiet cul-de-sac location in desirable West Mersea
- Well-maintained large garden
- Nearby coastal walks and local amenities
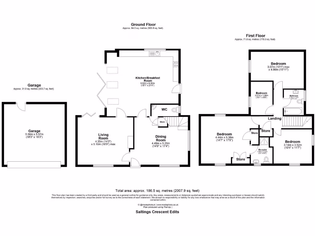
Nestled in the serene cul-de-sac of Saltings Crescent, this beautiful four-bedroom detached home combines spacious family living with a prime coastal lifestyle. Boasting a generous layout of approximately 2009 square feet, it features a well-appointed eat-in kitchen with sleek aluminium bi-folding doors that seamlessly connect to the expansive garden, perfect for summer gatherings. The inviting living room and formal dining room provide ample space for relaxation and entertaining.
Upstairs, enjoy the comfort of four generous bedrooms, including a gorgeous en-suite primary suite and a stylish family bathroom. Outside, the well-maintained garden features two sunny terraces, ideal for enjoying your outdoor space. Located just a stone's throw from West Mersea's tranquil beaches and local amenities, this property offers a wonderful blend of coastal charm and suburban comfort.
While the property is in excellent condition, potential buyers should note the need for slow broadband speeds and average council tax rates. With its appealing features and sought-after location, this family home is a rare find that won't last long!
4 bedroom detached house for sale in Bower Grove, Colchester, CO5 — £550,000 • 4 bed • 2 bath • 1378 ft²
4 bedroom detached house for sale in Fairhaven Avenue, West Mersea, Colchester, Essex, CO5 — £750,000 • 4 bed • 3 bath • 1547 ft²
3 bedroom detached house for sale in St. Peters Road, West Mersea, Colchester, Essex, CO5 — £725,000 • 3 bed • 1 bath • 1364 ft²
2 bedroom detached house for sale in Oakwood Avenue, West Mersea, CO5 — £425,000 • 2 bed • 2 bath • 1344 ft²
4 bedroom detached house for sale in Kingsmere Close, West Mersea, CO5 — £600,000 • 4 bed • 3 bath • 1373 ft²
4 bedroom detached house for sale in Langwood, West Mersea, CO5 — £400,000 • 4 bed • 2 bath • 1172 ft²






















































































































