**Standout Features:**
- Spacious five-bedroom detached farmhouse
- Scenic one-acre pony paddock and tree-lined garden
- Versatile main living areas with log burner
- Bonus storage space for hobbies or an office
- Potential for Airbnb income
- Newly renovated with rewiring and modern upgrades (2021-2023)
- Expansive attic ripe for conversion (900 sq ft)
- Quiet, rural setting with stunning fell views
**Notable Concerns:**
- Slow broadband speeds and average mobile signal
- Average area deprivation ratings
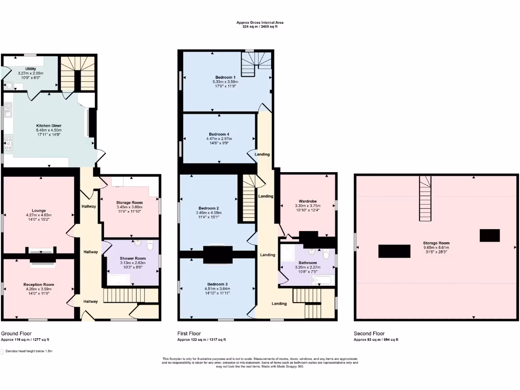
Escape to this stunning five-bedroom rural farmhouse, where comfort meets opportunity. Nestled at the end of a tranquil lane, this home offers sweeping views of the fells, complemented by a generous one-acre pony paddock and beautifully landscaped garden—perfect for families or those seeking their own slice of countryside serenity. The bright, sociable kitchen-diner features a log burner, inviting togetherness on cozy evenings, while two spacious reception rooms offer flexibility for family life and entertaining.
Upstairs, you'll find four ample double bedrooms, including a master with a walk-in wardrobe and a luxurious four-piece bathroom. The expansive attic, currently serving as storage, provides an incredible blank canvas for future renovations to create additional living space with breathtaking views. Recently updated between 2021 and 2023, this home is ready to move into while still offering renovation potential.
Additionally, the current owner has successfully run part of the property as an Airbnb, presenting an enticing opportunity for extra income from day one. With multiple off-street parking options and a serene, isolated setting, this property is not just a home; it's a lifestyle. Embrace the beauty of rural living, perfect for families or investors alike—schedule your viewing today and make this dream retreat your own.
5 bedroom detached house for sale in Lamplugh, Workington, CA14 — £449,950 • 5 bed • 2 bath • 2290 ft²
4 bedroom country house for sale in Bolton Head Farm, Gosforth, Seascale, CA20 1EW, CA20 — £650,000 • 4 bed • 2 bath • 2277 ft²
4 bedroom detached house for sale in Skelsceugh Road, Winder, CA26 — £310,000 • 4 bed • 3 bath • 2045 ft²
Detached house for sale in Mosser, Cockermouth, Cumbria, CA13 — £1,500,000 • 1 bed • 1 bath • 1118 ft²
3 bedroom terraced house for sale in Forest Houses,Ennerdale,Cleator,CA23 3AJ, CA23 — £240,000 • 3 bed • 1 bath • 1058 ft²
3 bedroom semi-detached house for sale in Murton Bank, Fell Dyke, Lamplugh, CA14 — £365,000 • 3 bed • 2 bath • 1159 ft²


































































































































