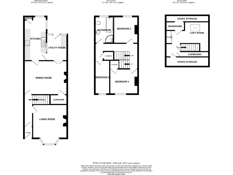
**Standout Features:**
- Charming three-bedroom Victorian terraced house with attic room
- Enclosed rear garden and double garage
- Scenic countryside views from an elevated position
- Two spacious reception rooms, fitted kitchen/breakfast room, and separate utility room
- Double glazing and gas central heating for comfort
- Freehold tenure and affordable Council Tax Band B
**Summary Description:**
Discover this delightful three-bedroom Victorian terraced house, perfectly situated at the edge of Chard Town, offering stunning countryside views. This characterful home features two well-proportioned reception rooms, a fitted kitchen/breakfast room, and a separate utility space, along with a converted attic providing extra living potential. The enclosed rear garden, complemented by a double garage, adds significant outdoor appeal. Enjoy the benefits of double glazing and mains gas central heating throughout the property.
While the broadband speeds may be slow, the property boasts a peaceful, affluent setting with a very low crime rate, ideal for families or first-time buyers seeking a serene environment with solid potential. The local community offers reputable schools and essential amenities, ensuring a comfortable lifestyle. With its unique blend of charm and functionality, this home won’t be on the market for long—seize the opportunity to make it yours today!
3 bedroom terraced house for sale in Furnham Road, Chard, Somerset, TA20 — £240,000 • 3 bed • 2 bath • 1224 ft²
3 bedroom semi-detached house for sale in King Athelstan Drive, Chard, TA20 — £270,000 • 3 bed • 1 bath • 1100 ft²
2 bedroom terraced house for sale in Forton Road, Chard, TA20 — £235,000 • 2 bed • 1 bath • 941 ft²
3 bedroom end of terrace house for sale in Bubwith Road, Chard, TA20 — £285,000 • 3 bed • 1 bath • 1299 ft²
3 bedroom end of terrace house for sale in Combe Street, Chard, Somerset, TA20 — £240,000 • 3 bed • 1 bath • 1260 ft²
2 bedroom terraced house for sale in Washington Terrace, Crimchard, Chard, Somerset, TA20 — £175,000 • 2 bed • 1 bath • 834 ft²


















































































