Contemporary four-bed family home with large garden and NHBC warranty in peaceful Llandyrnog.
10-year NHBC warranty included
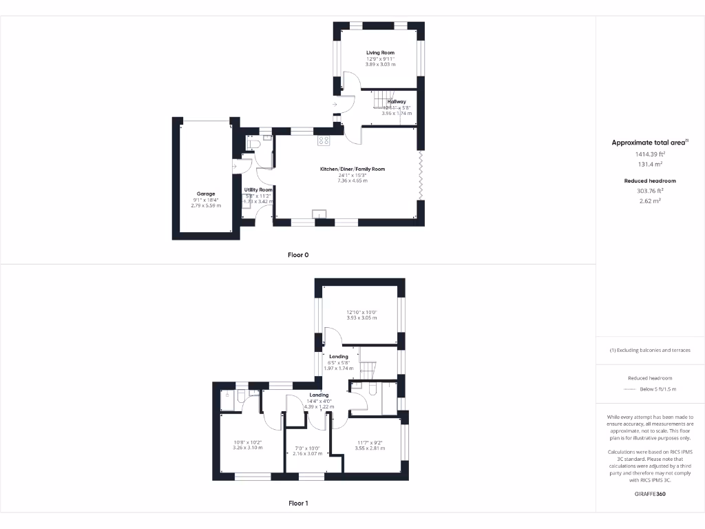
A newly built four-bedroom detached home on a large plot in the peaceful village of Llandyrnog, finished to a high specification and covered by a 10-year NHBC warranty. The open-plan kitchen/diner/family room with aluminium bi-folding doors creates a generous, light-filled hub for family life, while a quality shaker-style kitchen and integrated appliances deliver contemporary convenience. Underfloor heating and an air-source heat pump provide efficient, low-carbon heating throughout.
The detached property includes a garage (noted as designed with future development in mind) and driveway parking for multiple vehicles. Large garden space offers scope for play, landscaping or an extension (subject to consents). At around 1,414 sq ft, the layout suits growing families who want modern living with flexible reception space and four bedrooms.
Practical considerations: the development sits in a small hamlet setting approximately 4 miles from the market towns of Denbigh and Ruthin, so daily conveniences and wider services require a short drive. Mobile signal is average; broadband is fast. The wider area is reported as very deprived, which may be relevant for long-term resale or local funding and services. Buyers should note there are two bathrooms for four bedrooms.
This house will suit buyers seeking a contemporary family home in a quiet village location, with low-maintenance new-build finishes and room to adapt the plot over time. Viewing is recommended to assess the setting, garden potential and how the layout meets your family’s needs.
4 bedroom detached house for sale in Maes Erw Isaf, Llandyrnog, LL16 4BF, LL16 — £450,000 • 4 bed • 2 bath • 810 ft²
4 bedroom detached house for sale in Maes Erw Isaf, Llandyrnog, LL16 4BF, LL16 — £425,000 • 4 bed • 2 bath • 1414 ft²
4 bedroom detached house for sale in Llandyrnog, Denbigh, LL16 — £450,000 • 4 bed • 2 bath • 1414 ft²
4 bedroom detached house for sale in Maes Erw Isaf, Llandyrnog, LL16 4BF, LL16 — £450,000 • 4 bed • 2 bath • 1414 ft²
4 bedroom detached house for sale in Heritage Court, Acrefair, LL14 — £334,000 • 4 bed • 2 bath • 1332 ft²
4 bedroom detached house for sale in Llandyrnog, Denbigh, LL16 — £450,000 • 4 bed • 2 bath • 1414 ft²














































