Low-maintenance over-55 living with courtyard, conservatory and an allocated parking space.
Freehold mid-terrace built 2009 with EPC rating C
Over-55 gated development with on-site morning maintenance manager
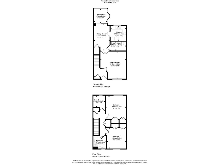
Two double bedrooms plus third room suitable as study/occasional bedroom
Three reception rooms including conservatory overlooking communal gardens
Small private courtyard; southerly-facing communal lawns and benches
One allocated car barn space; visitor parking and nearby free carpark
Service charge £3,689pa and ground rent £335pa (fixed until 2028)
Chain free sale; small plot and limited private garden space
Bright, low-maintenance living in a gated over-55 development close to Stalbridge high street. This modern mid-terrace cottage, built in 2009, offers flexible accommodation with two double bedrooms, a third room suitable as a study or occasional bedroom, and three reception rooms including a conservatory that overlooks peaceful, southerly communal gardens. The layout and ground-floor shower room give practical, future-proofed living for downsizers.
Outside there is a small partly enclosed courtyard and a allocated car barn space opposite the house. The development is managed with a regular maintenance programme and an on-site manager available weekday mornings, which helps keep communal areas tidy and secure and supports independent living without heavy DIY or gardening demands.
Important practical points are transparent: the property is sold chain free on a freehold transfer but carries an annual service charge of £3,689 and a ground rent of £335 (fixed until 2028). The private outdoor area is small, and parking is a single space in a shared car barn. Energy rating C, gas central heating and double glazing mean running costs are reasonable for its age.
This home will suit someone seeking a sociable, low-upkeep lifestyle near local shops and services, with easy access to nearby towns and rail links. It is not suitable for families with younger children because the development is restricted to over-55 residents.
3 bedroom retirement property for sale in Stapleford Court, Stalbridge, Sturminster Newton, DT10 — £300,000 • 3 bed • 1 bath • 801 ft²
3 bedroom terraced house for sale in Stapleford Court, Stalbridge, Sturminster Newton, DT10 — £230,000 • 3 bed • 1 bath • 1016 ft²
3 bedroom semi-detached house for sale in Stapleford Court, Stalbridge, DT10 — £300,000 • 3 bed • 1 bath
3 bedroom retirement property for sale in Grove Lane, Stalbridge, Sturminster Newton, Dorset, DT10 — £300,000 • 3 bed • 1 bath • 715 ft²
3 bedroom semi-detached house for sale in Stapleford Court, Stalbridge, Sturminster Newton, DT10 — £300,000 • 3 bed • 1 bath • 1076 ft²
3 bedroom house for sale in Stapleford Court, Stalbridge, DT10 — £300,000 • 3 bed • 2 bath






































































